Casa adosada a Dr Marañon, Ceutí
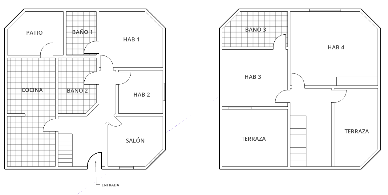
¡ Chalet con amplia terraza ! Vivienda unifamiliar adosada para reformar a la venta en el municipio de Ceutí, Murcia. La vivienda consta de dos plantas y está distribuida en salón-comedor, tres dormitorios, cocina, tres cuartos de baño, terraza, patio y vestíbulo. Además dispone de garaje. Cuenta con suelos de gres, ventanas de aluminio, armarios empotrados... Precisa reforma integral para entrar a vivir, pero ofrece muchas posibilidades. Buenas comunicaciones por carretera (B-12 y B-9). Próximo a todo tipo de servicios e infraestructuras como centros educativos (IES Felipe de Borbón), comercios, supermercados, farmacias, zonas verdes... SIN COMISIÓN
- 3 habs ·
- 321 m² ·
- Pàrquing ·
- Terrassa
