Casa adosada a Cala Figuera
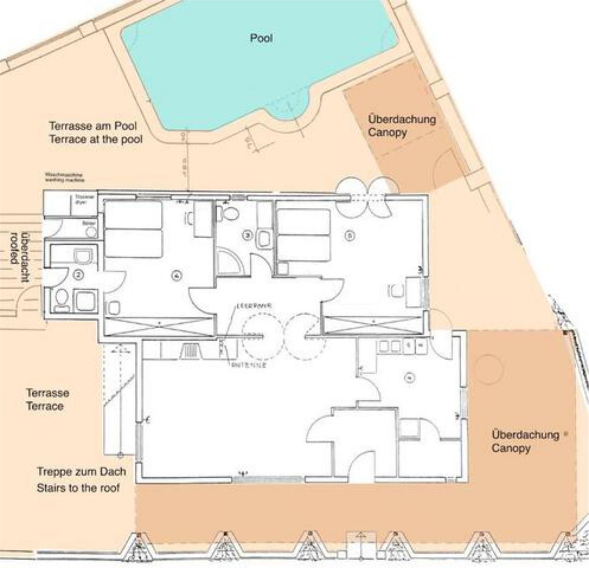
CHALET ÚNICO CON VISTAS DESPEJADAS AL MAR EN CALA FIGUERA 4 LICENCIAS VACACIONALES, AZOTEA Y PISCINA SIN AGENCIA PARA COMPRADORES ESPONTÁNEOS Durante 3 semanas, le ofrecemos la oportunidad de comprar nuestra casa sin agente. Estaremos en la isla y podremos mostrarle la propiedad personalmente. ¡No dude en contactarnos! Vida mediterránea en segunda línea de mar: Este auténtico chalet en Cala Figuera ofrece tranquilidad, sol y mar para usted y sus invitados. Su ubicación a las afueras del pueblo, directamente sobre los acantilados, es ideal: el mar abierto está literalmente a la vuelta de la esquina. Su ruta para correr por los acantilados con espectaculares puestas de sol comienza a solo 10 metros, al final del callejón sin salida. Segunda hilera de casas: vistas directas y despejadas al mar Licencia de alquiler vacacional para 4 dormitorios Gran piscina de agua salada con tecnología moderna y escaleras Terraza en la azotea con salida al exterior y vistas panorámicas hasta Cabrera Varias terrazas: sol o sombra todo el día Dos edificaciones: casa principal + anexo (p. ej., garaje posible) DATOS CLAVE Precio de compra: 1.285.000 Superficie de la parcela: 396 m² Superficie habitable: 116 m² Anexo: 30 m² Superficie construida: 146 m² Año de construcción: 1978 Habitaciones: 3 (2 dormitorios) Baños: 2 REFORMAS 20052006: Ventanas (teca, doble acristalamiento), fontanería 20162019: Calefacción por infrarrojos en el techo 20192023: Instalación eléctrica completamente nueva, potencia de 9,2 kW 2022: Techo y azotea 20222023: Sistema de aguas residuales (parcial) CERTIFICADO DE EFICIENCIA ENERGÉTICA Clase C Energía primaria: Electricidad INTERIOR El luminoso salón-comedor con chimenea da a la terraza con vistas al mar. Los grandes ventanales permiten disfrutar del mar en la casa, y la orientación oeste proporciona sol por la tarde. La espaciosa cocina con despensa da acceso a terrazas adicionales, ideales para desayunar o hace
- 3 habs·
- 2 baños·
- 146 m²·
- Terrassa
