Connecta la teva llar
Tria la Fibra que millor s'adapti a tu.
El Puerto de Santa María
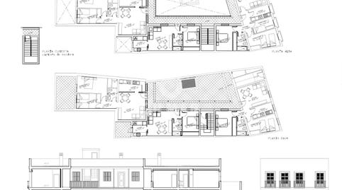
En el corazón del Casco Histórico del Puerto de Santa María, se encuentra este terreno con casa a rehabilitar en **edificio residencial** que representa una atractiva oportunidad para inversores o amantes de la rehabilitación. Con una superficie construida de **269 m²** sobre una **parcela de 302 m²**, este inmueble se sitúa en una de las zonas más emblemáticas de la Bahía de Cádiz.
El edificio, cuya estructura necesita rehabilitación, cuenta con una **altura edificable de dos plantas (B+1)** según el PGMOU y ofrece la posibilidad de desarrollar **cinco viviendas** en una ubicación privilegiada. Su uso, conforme a la normativa urbanística y al **artículo 20.3 de la Ley del Patrimonio Histórico Español**, será exclusivamente residencial, manteniendo la esencia y el carácter histórico de la zona.
El Puerto de Santa María es un enclave único que combina historia, cultura y gastronomía. Su casco histórico está lleno de encanto, con calles adoquinadas, casas palaciegas y una rica herencia arquitectónica que evoca el esplendor de épocas pasadas. Además, su excelente conexión con otros puntos de la Bahía de Cádiz lo convierte en un lugar estratégico para vivir o invertir. A menos de 10 kilómetros se encuentra el **Colegio Grazalema**, reconocido por su calidad educativa y prestigio en la región. Para quienes disfrutan del ocio y las compras, el **Centro Comercial Vistahermosa** está a solo unos minutos, ofreciendo una gran variedad de tiendas y restaurantes.
En cuanto a transporte, las líneas de autobuses que circulan cerca de la ubicación incluyen las **M-060 y M-061**, conectando el Puerto de Santa María con Cádiz y Jerez de la Frontera. Además, la estación de **Cercanías Renfe** del Puerto de Santa María está a pocos minutos, facilitando el acceso a otros municipios de la provincia. Las conexiones de tren y autobús hacen que esta área sea ideal tanto para residentes como para visitantes.
Tipus d'immoble
Energia
Emissions
Tipus d'interès
Quota mensual estimada
738 € *
* Provisional subjecte a estudi i oferta de CaixaBank
Ja estàs buscant finançament?
T'ajudem a trobar l'opció que millor s'adapta a tu.
Servei ofert per
Fotocasa no actua com a intermediari financer. La informació proporcionada té caràcter orientatiu, basant-se en informació pública al mercat. Serà l'entitat de crèdit qui contacti amb el potencial prestatari per negociar, facilitar i pactar les condicions financeres aplicables.
La teva quota mensual
738 € *
Durant 30 anys (360 quotes)
* Provisional subjecte a estudi i oferta de CaixaBank
Preu de l'immoble:
215.000 €
Impostos i despeses:
14.896 €
Cost total de l'immoble:
229.896 €
Estalvi aportat:
43.000 €
Import de la hipoteca:
186.896 €
Interessos totals:
78.951 €
Cost total amb hipoteca
308.847 €
Capital + interessos + impostos i despeses
Ja estàs buscant finançament?
T'ajudem a trobar l'opció que millor s'adapta a tu.
Servei ofert per
Fotocasa no actua com a intermediari financer. La informació proporcionada té caràcter orientatiu, basant-se en informació pública al mercat. Serà l'entitat de crèdit qui contacti amb el potencial prestatari per negociar, facilitar i pactar les condicions financeres aplicables.
Tria la Fibra que millor s'adapti a tu.
Estalvia un 30% en un servei de 5 estrelles.
Explica'ns què hi has vist per poder corregir-ho.