Connecta la teva llar
Tria la Fibra que millor s'adapti a tu.
La Unión
Hubo un tiempo en el que esta fachada miraba con orgullo el corazón palpitante de La Unión...
Justo enfrente de la actual comisaría de policía, en la Calle Progreso 3, se alzaba este **edificio señorial**, testigo del bullicio minero, de paseos en tardes doradas, de vecinos que saludaban desde sus balcones de hierro forjado. Construido en 1901, aún conserva esa esencia de tiempos mejores, esperando renacer con una nueva historia.
Hoy, este edificio emblemático se ofrece al inversor con visión, al amante de la arquitectura con alma, al empresario que sabe ver más allá de las paredes desconchadas. Porque lo que aquí se vende no es solo ladrillo y proyecto: es la oportunidad de devolver la vida a un pedazo de historia.
Con un proyecto de rehabilitación ya aprobado y tasas de licencia abonadas, esta joya está lista para transformarse en un negocio rentable y con carácter.
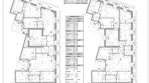
El proyecto contempla seis viviendas:
- 2 apartamentos de 3 dormitorios,
- 1 de 2 dormitorios,
- y 3 de 1 dormitorio,
cada uno pensado para adaptarse a las necesidades del mercado actual.
📍 Ubicado en el centro neurálgico de La Unión, junto a comercios, servicios y a pasos del futuro Museo del Cante de las Minas, este inmueble lo tiene todo para convertirse en:
- Un conjunto de viviendas para alquiler residencial.
- Un edificio boutique con apartamentos turísticos de estilo.
- O un mix inteligente para venta por unidades con retorno inmediato.
Además, su ubicación lo convierte en un punto estratégico para atraer tanto a residentes como a visitantes, gracias a su cercanía al Mar Menor, Cartagena y la vibrante vida cultural de la zona.
💡 Este edificio no es una simple inversión inmobiliaria: es una invitación a dejar huella en la ciudad, a escribir un nuevo capítulo sin borrar el pasado.
📞 No lo pienses demasiado. Las oportunidades con alma y proyección no esperan.
Contáctanos y déjate conquistar por el encanto eterno de la Calle Progreso 3.
Haz historia. Invierte con corazón y cabeza.
Tipus d'immoble
Orientació
Estat
Antiguitat
Consum energia
Emissions
Tipus d'interès
Quota mensual estimada
830 € *
* Provisional subjecte a estudi i oferta de CaixaBank
Ja estàs buscant finançament?
T'ajudem a trobar l'opció que millor s'adapta a tu.
Servei ofert per
Fotocasa no actua com a intermediari financer. La informació proporcionada té caràcter orientatiu, basant-se en informació pública al mercat. Serà l'entitat de crèdit qui contacti amb el potencial prestatari per negociar, facilitar i pactar les condicions financeres aplicables.
La teva quota mensual
830 € *
Durant 30 anys (360 quotes)
* Provisional subjecte a estudi i oferta de CaixaBank
Preu de l'immoble:
237.000 €
Impostos i despeses:
20.364 €
Cost total de l'immoble:
257.364 €
Estalvi aportat:
47.400 €
Import de la hipoteca:
209.964 €
Interessos totals:
88.696 €
Cost total amb hipoteca
346.059 €
Capital + interessos + impostos i despeses
Ja estàs buscant finançament?
T'ajudem a trobar l'opció que millor s'adapta a tu.
Servei ofert per
Fotocasa no actua com a intermediari financer. La informació proporcionada té caràcter orientatiu, basant-se en informació pública al mercat. Serà l'entitat de crèdit qui contacti amb el potencial prestatari per negociar, facilitar i pactar les condicions financeres aplicables.
Tria la Fibra que millor s'adapti a tu.
Estalvia un 30% en un servei de 5 estrelles.
Explica'ns què hi has vist per poder corregir-ho.