Connecta la teva llar
Tria la Fibra que millor s'adapti a tu.
Son Servera
Ubicada en el centro de Son Servera, esta propiedad ofrece versatilidad, ubicación estratégica y alto potencial de rentabilidad. El edificio, de tres plantas más sótano, combina local comercial y vivienda, con posibilidad de reconvertir el local en hasta 6 apartamentos VPL, ideal para inversores o proyectos a medida.
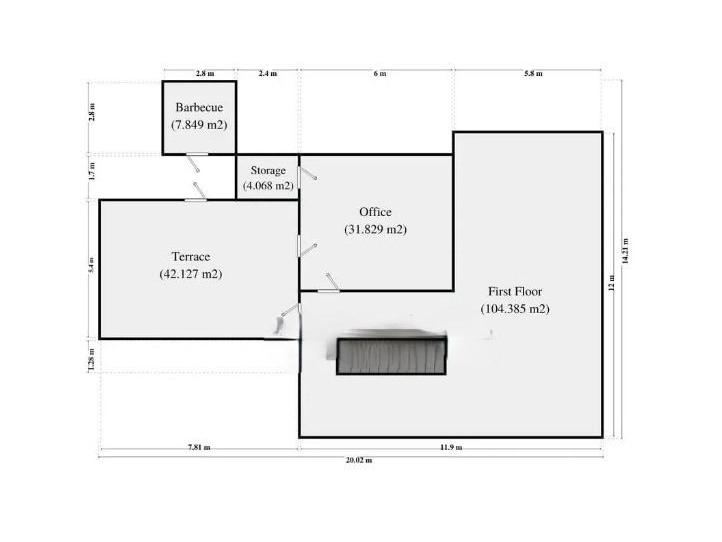
En el sótano, 250 m2 diáfanos permiten múltiples usos, desde aparcamiento privado hasta almacén o zona técnica. La planta baja, también de 250 m2, cuenta con un local luminoso gracias a sus ventanales, oficina y almacén, apto para negocios, showroom, coworking o centro de bienestar.
La primera planta ofrece un local de 105 m2 más oficina de 32 m2 y una terraza de 50 m2, con opción de adaptarlo como estudio, taller o apartamento. En la segunda planta se encuentra la vivienda unifamiliar de 150 m2 con tres dormitorios, un baño, un aseo, salón, comedor, cocina, lavandería, galería cerrada y terraza superior con vistas.
El edificio hace esquina, con acceso desde tres calles y un lateral junto al paseo peatonal que conecta Cala Millor con el centro. Son Servera ofrece servicios completos, club de golf y proximidad a las playas de Cala Millor y la Costa de los Pinos, combinando conectividad y entorno atractivo.
Tipus d'immoble
Orientació
Estat
Antiguitat
Consum energia
Emissions
Tipus d'interès
Quota mensual estimada
3.719 € *
* Provisional subjecte a estudi i oferta de CaixaBank
Ja estàs buscant finançament?
T'ajudem a trobar l'opció que millor s'adapta a tu.
Servei ofert per
Fotocasa no actua com a intermediari financer. La informació proporcionada té caràcter orientatiu, basant-se en informació pública al mercat. Serà l'entitat de crèdit qui contacti amb el potencial prestatari per negociar, facilitar i pactar les condicions financeres aplicables.
La teva quota mensual
3.719 € *
Durant 30 anys (360 quotes)
* Provisional subjecte a estudi i oferta de CaixaBank
Preu de l'immoble:
1.090.000 €
Impostos i despeses:
69.185 €
Cost total de l'immoble:
1.159.185 €
Estalvi aportat:
218.000 €
Import de la hipoteca:
941.185 €
Interessos totals:
397.590 €
Cost total amb hipoteca
1.556.775 €
Capital + interessos + impostos i despeses
Ja estàs buscant finançament?
T'ajudem a trobar l'opció que millor s'adapta a tu.
Servei ofert per
Fotocasa no actua com a intermediari financer. La informació proporcionada té caràcter orientatiu, basant-se en informació pública al mercat. Serà l'entitat de crèdit qui contacti amb el potencial prestatari per negociar, facilitar i pactar les condicions financeres aplicables.
Tria la Fibra que millor s'adapti a tu.
Estalvia un 30% en un servei de 5 estrelles.
Explica'ns què hi has vist per poder corregir-ho.