Edifici a Plaça Europa - Port Aventura
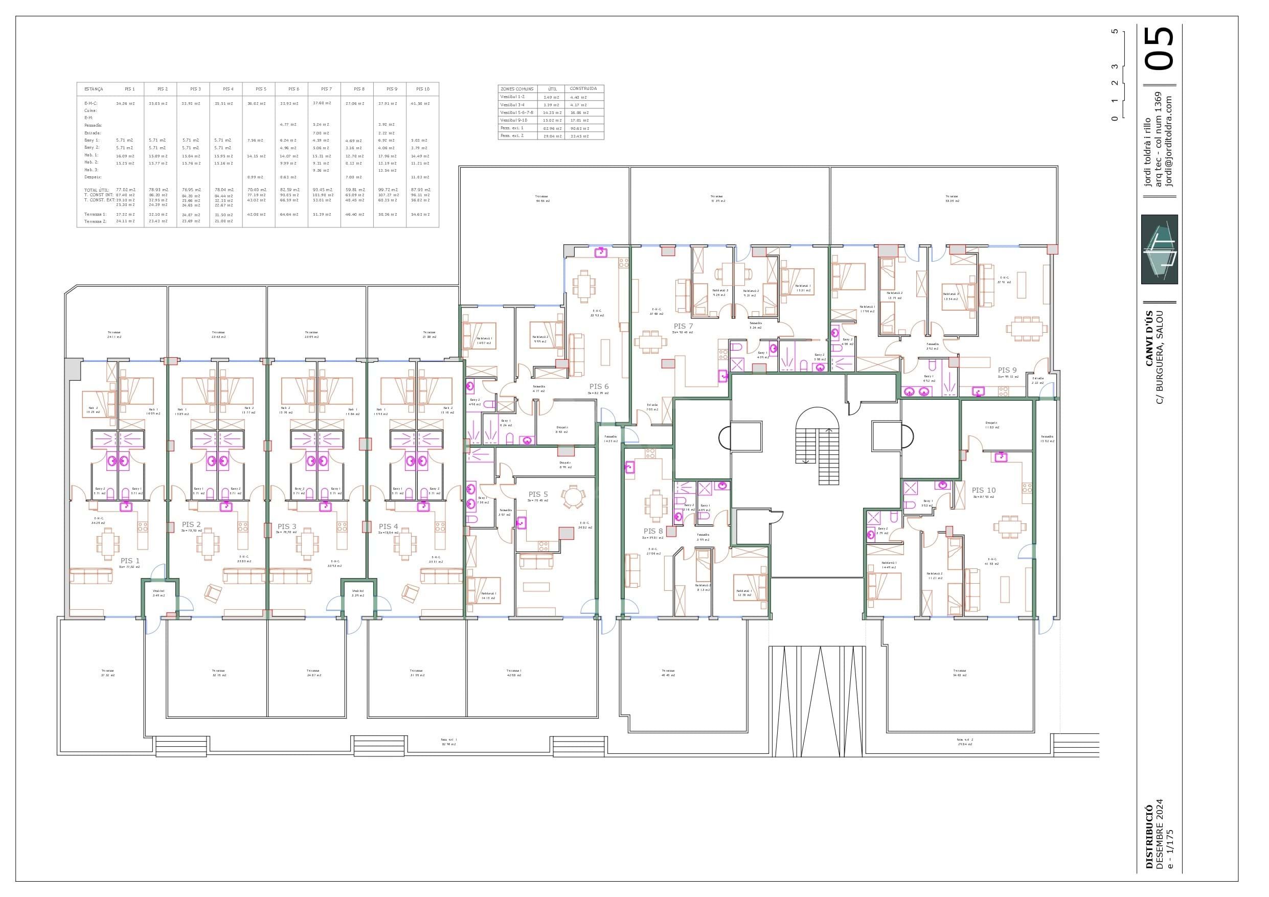
TRANSFORMACIÓN DE 5 LOCALES COMERCIALES EN 10 APARTAMENTOS El objeto del presente proyecto inmobiliario se corresponde con la “TRANSFORMACION DE CINCO (5) LOCALES COMERCIALES EN DIEZ (10) APARTAMENTOS”, mediante su previa adquisición “en condiciones ventajosas”, obtención de los permisos y licencias pertinentes, ejecución de la obra correspondiente y su comercialización y venta inmediata. El proyecto y los inmuebles afectados se encuentran ubicados en el municipio de Salou (provincia de Tarragona), Calle Burguera número 6, una de las ciudades o destinos turísticos mas importante de Cataluña y España, en la zona estival del municipio, 5 minutos caminando del paseo marítimo, playas y zonas comerciales y 5 minutos caminando de Port Aventura. El inmueble actualmente está compuesto de 5 locales comerciales, con una superficie total de 1.981m2, distribuidos en 941m2 construidos + 1.040 m2 de terrazas de uso privativo en una única planta baja con acceso directo desde la calle. Las superficies adoptadas para las viviendas oscilan entre 80,83 m² y 118,09 m², con diferentes distribuciones que se ajustan a la demanda del mercado. Se proyecta que las viviendas tengan acabados de alta calidad, con cocinas equipadas, sistemas de climatización eficientes, y ventanas de doble acristalamiento para mejorar el aislamiento térmico y acústico. El proyecto de las 10 viviendas incluye zonas comunitarias, que estarán equipadas con una piscina comunitaria y jardines. Estas características incrementan el atractivo del proyecto, mejoran la calidad de vida de los residentes y aumentan el valor de mercado de las viviendas.
- 941 m²