- Fa 40 dies
Pis a ANTICH, 40, Santa Catalina
- 4 habs ·
- 2 baños ·
- 137 m² ·
- 6ª planta ·
- Ascensor ·
- Terrassa ·
- Balcó ·
- Fa 40 dies
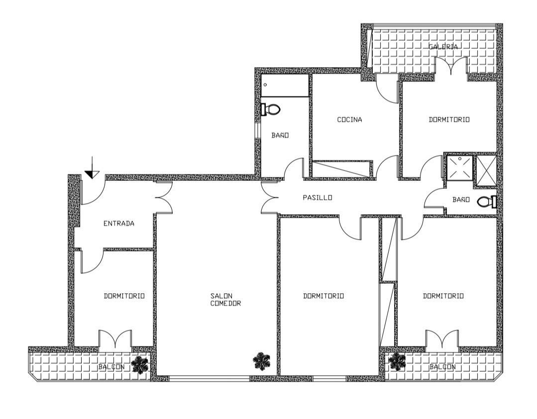
Venta en exclusiva – Piso de 123 m² útiles en Santa Catalina, Palma de Mallorca Se ofrece en exclusiva este amplio piso a reformar de 123 m² situado en una de las zonas más demandadas de Palma, el barrio de Santa Catalina. Una ubicación privilegiada, cerca de todos los servicios y a tan solo cinco minutos a pie del renovado Paseo Marítimo, ideal para quienes desean disfrutar de la ciudad desde su corazón. La vivienda, situada en una sexta planta con ascensor, ofrece un gran potencial de reforma gracias a la excelente distribución y amplitud del mismo. Actualmente dispone de cuatro dormitorios dobles, dos baños completos, salón-comedor, cocina independiente con amplia galería y dos balcones que aportan luminosidad y ventilación natural. Se trata de una excelente oportunidad de inversión para crear una vivienda a medida en una de las zonas con mayor proyección de Palma, rodeada de comercios, restaurantes, transporte público y todo tipo de servicios. Agentes Inmobiliarios Registrados en ROAIIBE GOIBE65280/2024