120.000 €
Casa o xalet amb terrassa a Desamparados - Hurchillo - Torremendo
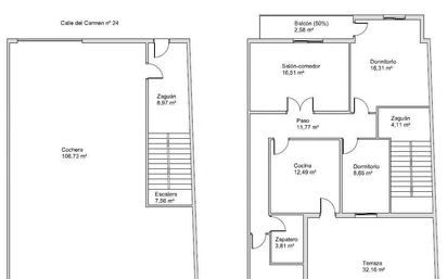
Ref. V-1734. ¡¡ OPORTUNIDAD EN ARNEVA !! Vivienda en planta alta con planta baja destinada a cochera en la pedanía de Arneva, Orihuela. La vivienda tiene una superficie construida de 236,44 m2. de los cuales 131,94 m2. corresponden a la planta baja destinada a garaje y 104,50 m2 a la planta alta, que se distribuye en 2 habitaciones, 1 baño, salón comedor, cocina independiente, balcón y terraza. ¡¡ No dude en consultarnos para cualquier aclaración o duda y concertar una visita !!
- 2 habs ·
- 1 baño ·
- 236 m² ·
- Pàrquing
