195.000 €
Pis a Nieves Cano, 19, Mendizorrotza - Armentia
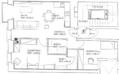
Al lado de las Universidades se vende este piso ideal como inversión y alquiler de estudiantes, dada la gran demanda de la zona Consta de dos dormitorios, amplia cocina, sala de estar que se puede reconvertir en dormitorio, y un cuarto de baño. Calefacción individual de gas. Tanto los dos dormitorios como la sala de estar están trasdosados con pladur para ofrecer mejor aislamiento térmico. Cocina reformada, suelo laminado, ventanas de aluminio lacadas en blanco. El piso tiene un amplio trastero con ventana en el sótano Los metros útiles son aproximados. Si necesitas cualquier información adicional, o quieres realizar una visita, no dudes en llamar a Fincas 20 20 al 688-757562
- 2 habs·
- 1 baño·
- 65 m²·
- Calefacció
Anunciant Professional