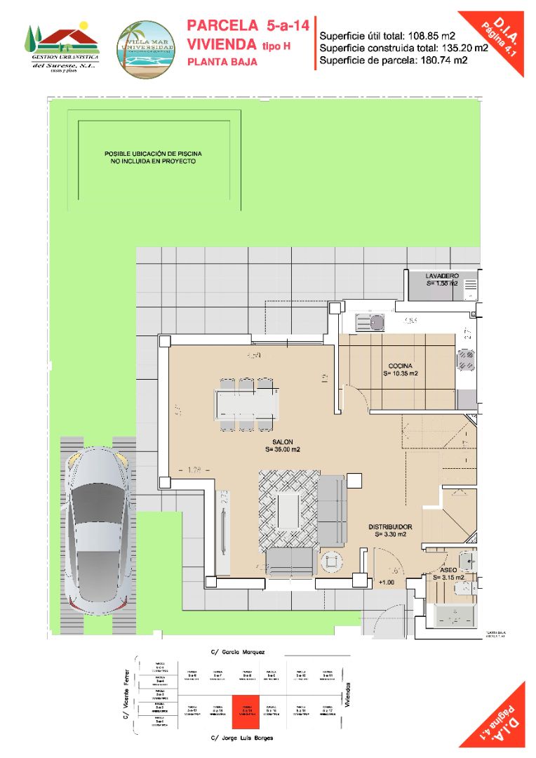
Casa adosada a Calle Jorge Luis Borges, 11, La Cañada de San Urbano
Nueva fase a la venta de casas con parcela en Villa Mar Universidad P- 5A Cañ-06, junto a la Universidad de Almería. Casas con parcela, de 3 y 4 dormitorios con 3 baños, en un entorno privilegiado, con colegio y pabellón deportivo a 250 m., Instituto, Centro de Salud, Supermercados… Promoción de casas con gran parcela individual para jardín y piscina, para el disfrute de toda la familia, espacio para reuniones familiares, zona de juego para nuestros hijos y para descansar en nuestro tiempo libre, zona de aparcamiento, situadas en una zona muy cómoda y tranquila para vivir, junto a la Universidad, y rodeadas de amplias zonas verdes y con todos los servicios a su alcance y a 5 minutos de Almería capital, excelentes calidades. El mobiliario y la decoración de los planos del proyecto y comerciales son orientativos. Para más información pueden llamar a los teléfonos 950 24 10 77 o 609 90 00 96 o visitar nuestra página web: https://fomentodelsureste.com/ y Estaremos encantados de poder atenderle. 17 viviendas en construcción, Parcela 5-A S-Cañ-06, La Cañada, Almería. Calificación Energética B. Las cantidades anticipadas se garantizarán conforme a ley. Garante UNICAJA, Nº de Póliza 21037930620650000431 Cuenta especial “Villa Mar Universidad, P-5A S-CAÑ06 ”. El dinero se entregará como parte del precio, a no ser que se especifique otro concepto. El promotor ajustará su actuación y contratación al cumplimiento de los requisitos establecidos en la Ley 38/1999. El consumidor tiene derecho a copia del Documento Informativo Abreviado y a cualquier información adicional en C/Valero Rivera, 8, 2º, Almería. Promueve Gestión Urbanistica del Sureste, S.L., Registro Mercantil Madrid, To10.302, Fo, 51 Hoja M-164080, CIF B81303513. Tributos y otros gastos que debe pagar el consumidor: I. V. A. al tipo vigente, ITP (Modalidad Actos Jurídicos Documentados), Notaria y Registro de la Propiedad.
- 3 habs ·
- 3 baños ·
- 135 m² ·
- Balcó
