Àtic amb terrassa a Juan Carlos I
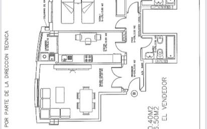
Vivienda TODA EN PLANTA en 7ª altura ubicada en edificio de únicamente 12 propiedades, con todo tipo de servicios a pie de calle en su entorno más inmediato, parada de tranvía y apenas 15 minutos a pie del centro de Murcia. Si buscas UN INMUEBLE SINGULAR, con las MEJORES CALIDADES, espacioso y con MUCHA LUZ, estás en el lugar adecuado ¡No encontrarás nada igual en todo el municipio! Con orientaciones principales mediodía , levante, y poniente, el ático se distribuye en 4 dormitorios (2 dobles), estando uno de ellos acondicionado como despacho, 2 baños (uno en suite en el dormitorio principal y otro en el pasillo, con claraboya de luz natural), cocina de 20 m2 con claraboya de luz natural ,con amplio lavadero y aseo, salón con chimenea de leña y una espaciosa terraza con pérgola de madera, ideal para tu ocio y disfrute. La vivienda, completamente instalada y equipada, cuenta con otros tantos equipamientos como: - A/A centralizado por conductos con bomba de calor - Calefacción por radiadores gas ciudad - Tarima de roble macizo sobre rastreles - Hasta 6 armarios empotrados distribuidos a lo largo de varias estancias - Pintura lisa - DOS PLAZAS DE GARAJE CONTIGUAS Y mucho más... ¿Quieres conocerla? No dudes en venir a ver un producto único en el mercado, de los que no hay dos iguales ¡Llámanos!
- 4 habs·
- 2 baños·
- 179 m²·
- +15 planta
