En construcción. ¡Entrega en verano de 2026!
Conoce cómo avanzan las obras del proyecto ICONIC en Lleida, próximo al Parc de l'Aigua.
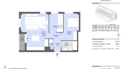
ICÒNIC es un proyecto residencial de 45 viviendas de 2, 3 y 4 dormitorios distribuidos en 4 escaleras, que cuenta con zona comunitaria interior con piscina y zona de juegos infantiles.
Encontrarás áticos de 3 dormitorios con grandes terrazas, y plantas bajas de 2, 3 y 4 dormitorios con terraza privada y acceso directo a la zona comunitaria para disfrutar dentro y fuera de tu hogar.
El conjunto residencial tiene su entrada principal desde la calle Sant Paulí de Nola, y da acceso a los vestíbulos de las 4 escaleras a través de la zona comunitaria interior.
El conjunto residencial cuenta con garaje comunitario para plazas de parking y trasteros, con entrada desde la calle Carrasco i Formiguera.
Es tu vida, elige dónde vivirla.
Característiques de l'habitatge
Característiques bàsiques
Certificat energètic
Immobles d'aquesta promoció
5 Habitatges en aquesta promoció
Pertany a
Iconic
Promoció Des de 181.000 €
C/carrasco I Formiguera, 8, Lleida Capital
- Habitacions:De 2 a 3
- Banys:De 1 a 2
- Superfície:De 81 m² a 187 m²