OBRAS AVANZADAS
Atlas Homes es un conjunto de casas unifamiliares en hilera con jardín delantero y posterior con una agradable piscina comunitaria, repartidas en 4 parcelas, cerca de todos los servicios, comercios, transporte y zonas verdes (Parque de Ca n´Oriol). Está situado a ambos lados de la calle Isaac Newton, y entre las calles Galileu, Eduard Fontseré, Flammarion y la Avenida Comas i Solà, en la zona de Ca n´Oriol, próximo a Sant Cugat del Vallès - Volpelleres. Un lugar ideal para formar tu nuevo hogar.
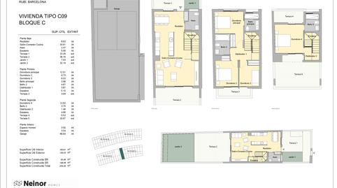
El proyecto residencial de Atlas Homes está formado por 4 conjuntos de casas unifamiliares adosadas distribuidas en 4 parcelas, que conforman un total de 38 chalets de planta baja y 2 alturas, con 4 dormitorios, 3 baños y un aseo. En su planta sótano disponen de un box de aparcamiento privado para 2 vehículos.
Todas las viviendas de Atlas Homes cuentan con amplias terrazas, la mayoría con jardín, y magníficas vistas al próximo parque de Ca n´Oriol, además podrán disfrutar también de una agradable zona comunitaria con piscina.
Todas las viviendas han sido diseñadas con distribuciones modernas, abiertas al exterior y bajo criterios de construcción sostenible y de máximo aprovechamiento del espacio y la luz solar.
Característiques de l'habitatge
Característiques bàsiques
Interior
Certificat energètic
Pertany a
Atlas Homes
Promoció Des de 665.000 €
Calle Isaac Newton, Rubí
- Habitacions:4
- Banys:4
- Superfície:232