Connecta la teva llar
Tria la Fibra que millor s'adapti a tu.
Cádiz Capital
Oportunidad exclusiva para inversores: edificio de oficinas premium en Cádiz con inquilino consolidado y contrato vigente, generando rentabilidad inmediata y estable desde el primer día.
Ubicado en el Parque Empresarial de Levante, una de las zonas de negocios más demandadas de la provincia, este activo combina solidez patrimonial, alto valor corporativo y garantía de ingresos.
🌍 Ubicación estratégica y entorno empresarial
El edificio se encuentra dentro de un área con gran proyección empresarial, rodeada de marcas nacionales e internacionales como Volkswagen, Thyssenkrupp, Aldi, BMW, Seat o Mariscos Ortiz.
La localización ofrece acceso rápido desde los principales ejes viarios, transporte público cercano y amplias zonas de aparcamiento gratuito, lo que asegura comodidad para trabajadores y visitantes.
🏗 Características del activo
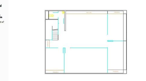
Superficie total: 535 m2 construidos distribuidos en tres plantas.
Diseño moderno y funcional firmado por el estudio Álvaro Linares.
Espacios luminosos y acristalados, ideales para sedes corporativas.
Mobiliario de alta gama, office equipado y climatización integral.
Solería Porcelanosa, cerramientos Technal y sistema domótico JUNG.
4 aseos interiores, uno con ducha y placas solares.
Sistema de videovigilancia y seguridad instalado.
💰 Rentabilidad y perfil de inversión
Este activo se comercializa en rentabilidad, con un contrato de arrendamiento vigente y un inquilino de solvencia contrastada.
La operación ofrece un retorno estable y predecible, ideal para inversores patrimoniales o fondos que buscan renta asegurada en un inmueble de primer nivel en Andalucía.
Cádiz se posiciona como una de las ciudades con mayor proyección empresarial del sur de España, donde la demanda de oficinas de calidad supera la oferta disponible.
Por ello, este activo representa una inversión estratégica y de bajo riesgo, respaldada por un inmueble de alta calidad constructiva y excelente ubicación.
📈 Datos clave
Tipo de activo: Oficinas en rentabilidad
Superficie: 535 m2
Precio de venta: 1.440.000 €
Ubicación: Cádiz – Parque Empresarial de Levante
Gestión: Luis Gallardo | Bankasa by eXp Realty
Modalidad: Venta con inquilino y contrato vigente
🤝 Asesoramiento y gestión confidencial
Operación gestionada en régimen confidencial por Luis Gallardo, especialista en activos en rentabilidad y propiedades corporativas en Andalucía y Madrid.
📞 Solicita información ampliada, rentabilidad actual y condiciones bajo acuerdo de confidencialidad (NDA).
Una inversión sólida, gestionada con profesionalidad, transparencia y visión patrimonial
Tipus d'immoble
Estat
Antiguitat
Planta
Ascensor
Moblat
Energia
Emissions
Tipus d'interès
Quota mensual estimada
4.908 € *
* Provisional subjecte a estudi i oferta de CaixaBank
Ja estàs buscant finançament?
T'ajudem a trobar l'opció que millor s'adapta a tu.
Servei ofert per
Fotocasa no actua com a intermediari financer. La informació proporcionada té caràcter orientatiu, basant-se en informació pública al mercat. Serà l'entitat de crèdit qui contacti amb el potencial prestatari per negociar, facilitar i pactar les condicions financeres aplicables.
La teva quota mensual
4.908 € *
Durant 30 anys (360 quotes)
* Provisional subjecte a estudi i oferta de CaixaBank
Preu de l'immoble:
1.440.000 €
Impostos i despeses:
90.185 €
Cost total de l'immoble:
1.530.185 €
Estalvi aportat:
288.000 €
Import de la hipoteca:
1.242.185 €
Interessos totals:
524.743 €
Cost total amb hipoteca
2.054.928 €
Capital + interessos + impostos i despeses
Ja estàs buscant finançament?
T'ajudem a trobar l'opció que millor s'adapta a tu.
Servei ofert per
Fotocasa no actua com a intermediari financer. La informació proporcionada té caràcter orientatiu, basant-se en informació pública al mercat. Serà l'entitat de crèdit qui contacti amb el potencial prestatari per negociar, facilitar i pactar les condicions financeres aplicables.
Tria la Fibra que millor s'adapti a tu.
Contracta llum i gas online, sense permanència.
Explica'ns què hi has vist per poder corregir-ho.