Calcula la teva hipoteca
Compara ofertes dels diferents bancs.
Elche / Elx
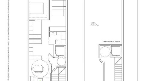
Ponemos a la venta este solar de 105 metros de planta en la zona de la calle Poeta Miguel Hernández para construir vivienda unifamiliar o edifico.
Ponemos planos de posible construcción y distribución.
Si te interesa llámanos e infórmate!!
*La información de este anuncio en su totalidad (Fotos, texto o cualquier otro contenido del mismo) se muestra a título informativo y no contractual y no es vinculante, dado que la información es ofrecida por terceros y puede contener errores.
Este inmueble está sujeto a cambios de precio o retirada del mercado sin previo aviso.
El precio no incluye lo siguiente:, ITP y otros gastos de la Compraventa (Notaria, Gestoría y registro).
We are selling this 105 square meter plot of land in the area of Poeta Miguel Hernández Street to build a single-family home or building. We have plans for the possible construction and layout. If you are interested, call us and find out!
*This announcement is not binding, may contain errors, and is shown for informational purposes only and is not contractual.
Tipus d'immoble
Compara ofertes dels diferents bancs.
Tria la Fibra que millor s'adapti a tu.
Estalvia un 30% en un servei de 5 estrelles.
Explica'ns què hi has vist per poder corregir-ho.