Connecta la teva llar
Tria la Fibra que millor s'adapti a tu.
Figueres
Se ofrece en venta este solar edificable situado dentro del casco urbano de Figueres, en una calle residencial muy tranquila y con poco tráfico.
La parcela, de forma rectangular, tiene unas dimensiones de 6,45 metros de ancho por 14,5 metros de fondo. La fachada principal, orientada al norte, da a la calle, y el terreno cuenta con una pendiente plana. La antigua construcción ya ha sido demolida y el solar se encuentra actualmente vallado, con puerta de acceso instalada.
Proyecto incluido en el precio
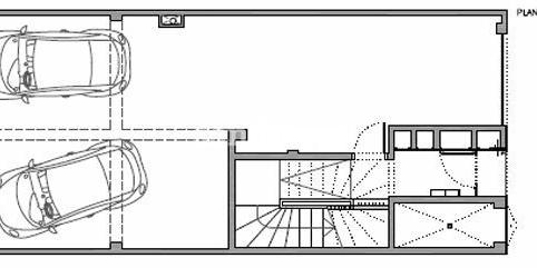
La venta incluye un proyecto arquitectónico que contempla la construcción de un edificio de tres plantas, distribuido de la siguiente manera:
Planta baja (83,45 m² útiles): Garaje de 66,45 m², vestíbulo y zonas comunes.
Primera planta (68,95 m² útiles): Vivienda con 2 dormitorios, 1 baño completo, cocina independiente, zona de lavadero y terraza de 12 m².
Segunda planta con altillo (109,15 m² útiles): Vivienda tipo dúplex con 2 dormitorios, 1 baño completo, cocina independiente, lavadero, un segundo baño, y un altillo con 1 baño adicional, tres estancias polivalentes y dos terrazas de 10 m² y 8 m² respectivamente.
Una excelente oportunidad para promotores, inversores o particulares que deseen construir en una ubicación estratégica de Figueres.
Contáctenos para más información o concertar una visita. [IW]
Tipus d'immoble
Tipus d'interès
Quota mensual estimada
434 € *
* Provisional subjecte a estudi i oferta de CaixaBank
Servei ofert per
Fotocasa no actua com a intermediari financer. La informació proporcionada té caràcter orientatiu, basant-se en informació pública al mercat. Serà l'entitat de crèdit qui contacti amb el potencial prestatari per negociar, facilitar i pactar les condicions financeres aplicables.
Desglossament de la hipoteca
La teva quota mensual
434 € *
Durant 30 anys (360 quotes)
* Provisional subjecte a estudi i oferta de CaixaBank
Preu de l'immoble:
120.000 €
Impostos i despeses de la compra:
13.903 €
Cost total de l'immoble:
133.903 €
Estalvi aportat:
24.000 €
Import de la hipoteca:
109.903 €
Interessos totals:
46.427 €
Cost total amb hipoteca
180.330 €
Capital + interessos + impostos i despeses
Fotocasa no actua com a intermediari financer. La informació proporcionada té caràcter orientatiu, basant-se en informació pública al mercat. Serà l'entitat de crèdit qui contacti amb el potencial prestatari per negociar, facilitar i pactar les condicions financeres aplicables.
Tria la Fibra que millor s'adapti a tu.
Contracta llum i gas online, sense permanència.
Explica'ns què hi has vist per poder corregir-ho.