Connecta la teva llar
Tria la Fibra que millor s'adapti a tu.
Palma de Mallorca
Desarrollo de proyecto con Licencia en Palma de Mallorca – para inversores y promotores
Se vende un terreno urbano en Palma de Mallorca con Proyecto Básico elaborado para la construcción de un edificio de apartamentos con tres viviendas.
Licencia aprobada, se puede comenzar a construir.
El proyecto se encuentra en una zona residencial urbana consolidada de Palma y es ideal para desarrolladores de proyectos, promotores o inversores privados que busquen un desarrollo manejable y realista – sin riesgo de gran proyecto.
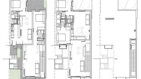
El proyecto de un vistazo
✔ Solar urbano
✔ Proyecto para 3 viviendas
✔ Planta baja + planta primera + cubierta
✔ Conceptos de distribución bien pensados
✔ Patios / espacios exteriores planificados
✔ Zonificación urbana clara (residencial)
Las unidades planificadas son funcionales, adecuadas al mercado y óptimamente ajustadas al tamaño del terreno – ideal para venta individual, alquiler o modelos combinados.
Por qué este proyecto es interesante
✔ Terreno urbano en Palma (sin riesgo de periferia)
✔ Proyecto Básico ya disponible
✔ Licencia disponible
✔ Número de unidades manejable → inversión calculable
✔ Alta demanda de apartamentos nuevos en esta categoría
✔ Adecuado para inversores de capital propio o desarrolladores con una clara estrategia de salida
Notas importantes (transparentes y profesionales)
El terreno se encuentra en un área donde se requiere un estudio técnico adicional para la aprobación final de la construcción.
👉 Esto es conocido, calculable y planificable en el proceso de desarrollo – no es un criterio de exclusión, sino parte de un desarrollo de proyecto limpio.
Todos los documentos relevantes (proyecto, registro de la propiedad, urbanismo) están disponibles y se pueden revisar en caso de interés serio.
Conclusión
Un proyecto de desarrollo urbano honesto con una estructura clara, una perspectiva de aprobación realista y un verdadero potencial de mercado en Palma de Mallorca.
No es un proyecto masivo – sino una oportunidad de inversión limpia para los tomadores de decisiones.
📞 Contacto
Contacto directo deseado - ¡por favor, telefónicamente!
Tipus d'immoble
Tipus d'interès
Quota mensual estimada
1.198 € *
* Provisional subjecte a estudi i oferta de CaixaBank
Ja estàs buscant finançament?
T'ajudem a trobar l'opció que millor s'adapta a tu.
Servei ofert per
Fotocasa no actua com a intermediari financer. La informació proporcionada té caràcter orientatiu, basant-se en informació pública al mercat. Serà l'entitat de crèdit qui contacti amb el potencial prestatari per negociar, facilitar i pactar les condicions financeres aplicables.
La teva quota mensual
1.198 € *
Durant 30 anys (360 quotes)
* Provisional subjecte a estudi i oferta de CaixaBank
Preu de l'immoble:
350.000 €
Impostos i despeses:
23.199 €
Cost total de l'immoble:
373.199 €
Estalvi aportat:
70.000 €
Import de la hipoteca:
303.199 €
Interessos totals:
128.082 €
Cost total amb hipoteca
501.281 €
Capital + interessos + impostos i despeses
Ja estàs buscant finançament?
T'ajudem a trobar l'opció que millor s'adapta a tu.
Servei ofert per
Fotocasa no actua com a intermediari financer. La informació proporcionada té caràcter orientatiu, basant-se en informació pública al mercat. Serà l'entitat de crèdit qui contacti amb el potencial prestatari per negociar, facilitar i pactar les condicions financeres aplicables.
Tria la Fibra que millor s'adapti a tu.
Estalvia un 30% en un servei de 5 estrelles.
Explica'ns què hi has vist per poder corregir-ho.