Connecta la teva llar
Tria la Fibra que millor s'adapti a tu.
Piélagos
Construir 36 viviendas y 12 apartamentos turísticos se dice fácil, pero conlleva tiempo y esfuerzo. Nuestra tarea es quitarte mucho peso en esta inversión y por ello en LOCALIA INMOBILIARIA te lo presentamos de la manera más fácil posible.
Se trata de una parcela urbana de 4619m² situada en el pintoresco barrio de Mortera, Piélagos, a tan solo 5 kilómetros de las playas de la Arnía, Liencres y San Juan de la Canal y a 10 kilómetros de la ciudad de Santander. Recorrer desde este punto la Cantabria infinita es posible gracias a su fácil acceso a las autovías A-67 y S-30.
Sobre dicha parcela disponemos de un proyecto de ejecución aprobado para la construcción de 36 viviendas y 12 apartamentos turísticos.
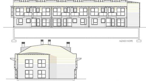
** Edificios de viviendas.
Los edificios se plantean como dos pastillas prácticamente iguales entre sí, con una planta sótano destinada a 46 plazas de aparcamiento. En la planta baja se proyectan 6 viviendas en cada bloque y en la planta primera otras 12 viviendas por bloque unidas mediante escalera interior a la planta bajo cubierta.
- Las viviendas de planta baja cuentan todas con un programa funcional consistente en salón-comedor, cocina, dos habitaciones, baño y aseo.
- Las viviendas duplex cuentan en planta primera con salón-comedor, cocina y aseo y en planta bajo cubierta se dispone la zona de noche, contando con dos habitaciones y baño.
** Apartamentos turísticos
Todos los apartamentos se proyectan en formato duplex, desarrollado con acceso en planta baja, en donde se disponen un salón-comedor, cocina y aseo. en planta primera los apartamentos cuentan con dos habitaciones y baño.
La planta de sótano se destina a garajes, contando con 24 plazas.
Excelente oportunidad para desarrollar tu próxima promoción en Cantabria!.
Contáctanos ahora si deseas más información acerca de este u otro inmueble. Te asesoraremos sin compromiso y te acompañamos en la visita.
La información que contiene este anuncio no es vinculante, puede estar sujeta a cambios y se muestra a título informativo y no contractual.
Consulta los términos y condiciones de la prestación de los servicios en nuestra web
CONSULTORIA INMOBILIARIA INDUSTRIAL Y COMERCIAL - LAS MEJORES NAVES, LOCALES, SUELOS PARA HACER CRECER SU NEGOCIO.
Tipus d'immoble
Tipus d'interès
Quota mensual estimada
7.751 € *
* Provisional subjecte a estudi i oferta de CaixaBank
Ja estàs buscant finançament?
T'ajudem a trobar l'opció que millor s'adapta a tu.
Servei ofert per
Fotocasa no actua com a intermediari financer. La informació proporcionada té caràcter orientatiu, basant-se en informació pública al mercat. Serà l'entitat de crèdit qui contacti amb el potencial prestatari per negociar, facilitar i pactar les condicions financeres aplicables.
La teva quota mensual
7.751 € *
Durant 30 anys (360 quotes)
* Provisional subjecte a estudi i oferta de CaixaBank
Preu de l'immoble:
2.200.000 €
Impostos i despeses:
201.785 €
Cost total de l'immoble:
2.401.785 €
Estalvi aportat:
440.000 €
Import de la hipoteca:
1.961.785 €
Interessos totals:
828.727 €
Cost total amb hipoteca
3.230.512 €
Capital + interessos + impostos i despeses
Ja estàs buscant finançament?
T'ajudem a trobar l'opció que millor s'adapta a tu.
Servei ofert per
Fotocasa no actua com a intermediari financer. La informació proporcionada té caràcter orientatiu, basant-se en informació pública al mercat. Serà l'entitat de crèdit qui contacti amb el potencial prestatari per negociar, facilitar i pactar les condicions financeres aplicables.
Tria la Fibra que millor s'adapti a tu.
Estalvia un 30% en un servei de 5 estrelles.
Explica'ns què hi has vist per poder corregir-ho.