Terreny industrial a Tueda
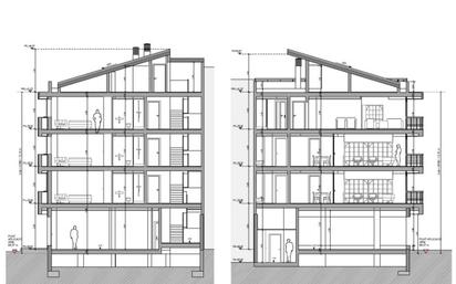
¡Oportunidad para promotores! Solar en venta con proyecto básico en Sant Feliu de Guíxols Se vende solar residencial de 240 m² en una excelente ubicación en Sant Feliu de Guíxols. Cuenta con un proyecto básico ya elaborado, listo para solicitar la licencia de obras. El proyecto contempla la construcción de 7 viviendas y 1 local comercial, distribuidos en planta baja más 3 alturas, lo que maximiza su potencial de rentabilidad. Características destacadas: - Superficie: 240 m² - Edificabilidad: Planta baja + 3 alturas - Uso residencial con local comercial - Proyecto básico listo para licencia - Ubicación estratégica en Sant Feliu de Guíxols Para más información, no dude en consultarnos. www.kuperrs.com
- 240 m²