Calcula la teva hipoteca
Compara ofertes dels diferents bancs.





Aldeadávila de la Ribera
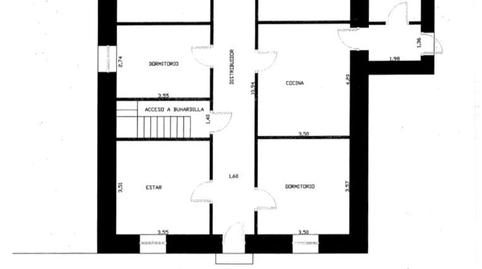
Se vende vivienda en pleno núcleo urbano. Consta de un terreno de 838 m2 del cual están construidos una vivienda de 3 plantas con 282 m2 útiles u otro edificio de dos plantas de 70,60 m2 el cual la planta inferior se usa de garaje. Tiene unos 500 m2 de parcela anexa utilizada de huerto.
Tipus d'immoble
Orientació
Estat
Antiguitat
Pàrquing
Moblat
Consum energia
Emissions
Compara ofertes dels diferents bancs.
Tria la Fibra que millor s'adapti a tu.
Estalvia un 30% en un servei de 5 estrelles.
Explica'ns què hi has vist per poder corregir-ho.