Calcula la teva hipoteca
Compara ofertes dels diferents bancs.
Alp
Os presentamos una promoción de 2 casas pareadas de obra nueva en Alp.
Casas con acabados de calidad, situadas en una calle muy céntrica del pueblo con un jardín privado y sol de tarde.
Dejamos el coche en el garaje y podemos ir andando a todos los servicios que nos oferce el apreciado pueblo de Alp.
Las casas nos ofreceran una planta baja con garaje para un coche, zona de trastero, zona de lavadero y una sala diáfana con salida al jardín.
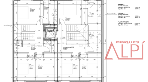
En la primera planta habrá 3 habitaciones dobles con su propio armario empotrado, ofreciendo el espacio necesario para la ropa de todos y 2 baños completos. Una de las habitaciones será tipo suite con baño privado.
En la segunda planta tendremos la cocina y el amplio salón-comedor con chimenea y salida a una terraza orientada al suroeste con bonitas vistas al Cadí.
Las casas seran muy confortables. Además cabe la posibilidad de la instalación de ascensor.
No dejes escapar la oportunidad de tener una casa fantástica casa en Alp a poca distancia de la salida del tunel del cadí, de las pistas de esquí de La Molina y Masella o del club de golf Fontanals.
¡Contacta con nosotros para más información!
Tipus d'immoble
Orientació
Estat
Antiguitat
Consum energia
Emissions
Compara ofertes dels diferents bancs.
Tria la Fibra que millor s'adapti a tu.
Estalvia un 30% en un servei de 5 estrelles.
Explica'ns què hi has vist per poder corregir-ho.