Connecta la teva llar
Tria la Fibra que millor s'adapti a tu.
Barcelona Capital
Engel & Völkers presenta este luminoso piso situado en una planta alta, de finca con conserge, y posibilidad de parking.
*Las imágenes son ejemplo de otros proyectos acabados, esta reforma se finaliza en Noviembre*
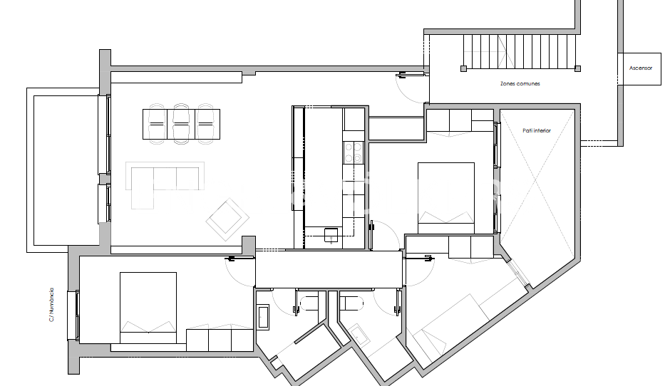
La zona de día se organiza en un amplio salón-comedor con salida a la terraza, un espacio perfecto para disfrutar del aire libre y la luz natural. La cocina está totalmente equipada con electrodomésticos panelados y un diseño moderno y funcional.
La vivienda dispone de tres dormitorios y dos baños. Los acabados son de alta calidad: baño con grifería y sanitarios Roca, puertas de madera maciza lacadas, carpintería de aluminio con doble acristalamiento y persianas. Los suelos laminados AC5, resistentes al agua, aportan calidez y durabilidad. Además, el piso cuenta con sistema de climatización por conductos, con aire acondicionado y calefacción integrados, garantizando confort en todas las estaciones.
Con una superficie construida de vivienda aproximada de 84 m² y 7 m² de terraza, esta propiedad combina diseño, calidad y una ubicación privilegiada en uno de los barrios más emblemáticos de Barcelona.
Ubicado done la calle Numancia confluye con la calle Berlín., esta zona cuenta con una ubicación privilegiada. Sants- Les Corts es conocida por su atmósfera dinámica y encanto moderno y se está convirtiendo en uno de los distritos más buscados de la ciudad, de fácil acceso de salida y entrada a la ciudad, como de fácil acceso al centro o cualquier otra zona por su accesibilidad con cualquier tipo de transporte y cercanía a la estación de Sants. Rodeado de servicios esenciales cuenta con una gran cantidad de restaurantes, cafés y tiendas y muy cerca del CC L'illa. Con su combinación de hitos culturales, comodidades modernas y proximidad a espacios verdes, este vecindario ejemplifica lo mejor de la vida urbana contemporánea en Barcelona.
Tipus d'immoble
Disponibilitat
Estat
Antiguitat
Planta
Ascensor
Moblat
Energia
Emissions
Tipus d'interès
Quota mensual estimada
2.375 € *
* Provisional subjecte a estudi i oferta de CaixaBank
Ja estàs buscant finançament?
T'ajudem a trobar l'opció que millor s'adapta a tu.
Servei ofert per
Fotocasa no actua com a intermediari financer. La informació proporcionada té caràcter orientatiu, basant-se en informació pública al mercat. Serà l'entitat de crèdit qui contacti amb el potencial prestatari per negociar, facilitar i pactar les condicions financeres aplicables.
La teva quota mensual
2.375 € *
Durant 30 anys (360 quotes)
* Provisional subjecte a estudi i oferta de CaixaBank
Preu de l'immoble:
665.000 €
Impostos i despeses:
68.997 €
Cost total de l'immoble:
733.997 €
Estalvi aportat:
133.000 €
Import de la hipoteca:
600.997 €
Interessos totals:
253.882 €
Cost total amb hipoteca
987.879 €
Capital + interessos + impostos i despeses
Ja estàs buscant finançament?
T'ajudem a trobar l'opció que millor s'adapta a tu.
Servei ofert per
Fotocasa no actua com a intermediari financer. La informació proporcionada té caràcter orientatiu, basant-se en informació pública al mercat. Serà l'entitat de crèdit qui contacti amb el potencial prestatari per negociar, facilitar i pactar les condicions financeres aplicables.
Tria la Fibra que millor s'adapti a tu.
Estalvia un 30% en un servei de 5 estrelles.
Explica'ns què hi has vist per poder corregir-ho.