Connecta la teva llar
Tria la Fibra que millor s'adapti a tu.
Cartagena
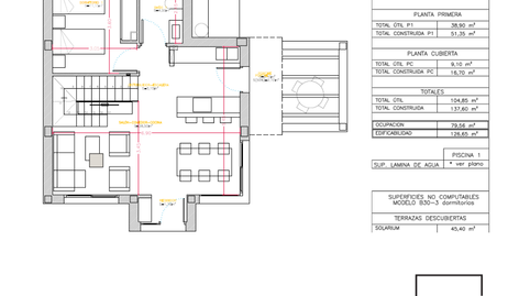
Villa de 3 dormitorios y 3 baños en Playa Honda con piscina privada y solárium.
Una vivienda luminosa, moderna y lista para vivir que combina elegancia, confort y la magia del Mediterráneo. Distribuida en tres plantas, en la planta baja ofrece un amplio salón–comedor conectado a una cocina abierta con grandes ventanales que inundan de luz cada rincón, además de un dormitorio y un baño completo.
En la segunda planta se encuentran dos cómodos dormitorios y dos baños, junto con un segundo salón de espacio diáfano que permite múltiples usos: zona de relax, despacho, gimnasio o área de entretenimiento. En la azotea, un solárium invita a disfrutar del sol durante todo el año y de momentos inolvidables al aire libre.
El exterior es puro encanto: terraza privada, piscina para refrescarse cuando quieras y plaza de aparcamiento. Se vende totalmente equipada con electrodomésticos, muebles, cortinas, campana extractora y aire acondicionado, convirtiéndola en una opción perfecta como residencia permanente, segunda vivienda o inversión.
Situada a solo 3 minutos andando de la playa, en una zona tranquila pero cerca de todos los servicios, esta villa ofrece privacidad, bienestar y el privilegio de vivir junto al Mar Menor… un refugio exclusivo donde desconectar y disfrutar cada día.
Clima:
El clima en la Costa Cálida, a menudo considerado como el mejor de Europa, hace posible un estilo de vida muy sociable y saludable, al aire libre, marcado por completas instalaciones deportivas y de ocio, con ciudades turísticas, excitantes y cosmopolitas, que destacan por la prestación de servicios máxima categoría, algunos de ellos exclusivos, considerados de auténtico lujo. Todos ellos destinados a un cliente exigente, que busca calidad y cercanía.
La Costa Cálida cuenta con más de 300 días de sol al año. Un paraíso con excelentes conexiones a toda Europa.
Entorno:
La Costa Cálida sigue atrayendo a personas de toda Europa, y de otros lugares del mundo, porque ofrece una calidad de vida única en un hermoso entorno a orillas del mar Mediterráneo, rodeado de montañas y de una exuberante vegetación.
Además de los campos de golf y los puertos deportivos que podrás disfrutar por toda la costa, la zona también ofrece la posibilidad de esquiar en la cercana Sierra Nevada, Javalambre o Valdelinares, unos paraísos para amantes de los deportes de invierno, con hermosos paisajes naturales. La Costa Cálida ofrece un estilo de vida singularmente rico, donde las mejores playas y calas del Mediterráneo se combinan con un interior repleto de montañas y pueblos que esconden cultura y monumentos históricos únicos en el mundo.
Tenemos un regalo para ti:
En Six Seconds Properties te ayudamos a convertir tu nueva propiedad en la casa de tus sueños, regalándote una visita técnica de la vivienda, donde nuestro equipo técnico te aconsejará sobre las posibilidades de mejora de la vivienda. Totalmente gratis!!
En Six Seconds Properties creemos que tu confianza merece un trato excepcional.
IMPORTANTE!!
Recuerda que nuestros servicios NO incrementan NUNCA el precio final de la vivienda a nuestros clientes. Nuestra experiencia en el sector nos convertirá en tu aliado, un asesor de confianza que te ayudará a elegir la casa de tus sueños en la mejor zona, informarte sobre el precio de mercado de los inmuebles en los que estás interesado, las calidades empleadas...todo la información imprescindible y objetiva para que tu experiencia sea totalmente satisfactoria.
Six Seconds Properties pertenece a un grupo de empresas consolidadas y especializadas todas ellas en el sector del hogar; arquitectura, interiorismo, mobiliario, asesoramiento en la compra venta de bienes raíces etc... Estos recursos propios nos permiten ofrecer unos servicios únicos y exclusivos a nuestros clientes.
Six Seconds Properties es una agencia moderna, sensible con las nuevas tecnologías y oportunidades de mercado. Por ello también somos pioneros en ofrecerte la posibilidad de realizar transacciones inmobiliarias seguras y transparentes con criptomonedas.
Tipus d'immoble
Disponibilitat
Orientació
Estat
Garatge
Ascensor
Moblat
Energia
Emissions
Tipus d'interès
Quota mensual estimada
2.072 € *
* Provisional subjecte a estudi i oferta de CaixaBank
Ja estàs buscant finançament?
T'ajudem a trobar l'opció que millor s'adapta a tu.
Servei ofert per
Fotocasa no actua com a intermediari financer. La informació proporcionada té caràcter orientatiu, basant-se en informació pública al mercat. Serà l'entitat de crèdit qui contacti amb el potencial prestatari per negociar, facilitar i pactar les condicions financeres aplicables.
La teva quota mensual
2.072 € *
Durant 30 anys (360 quotes)
* Provisional subjecte a estudi i oferta de CaixaBank
Preu de l'immoble:
595.000 €
Impostos i despeses:
48.460 €
Cost total de l'immoble:
643.460 €
Estalvi aportat:
119.000 €
Import de la hipoteca:
524.460 €
Interessos totals:
221.550 €
Cost total amb hipoteca
865.010 €
Capital + interessos + impostos i despeses
Ja estàs buscant finançament?
T'ajudem a trobar l'opció que millor s'adapta a tu.
Servei ofert per
Fotocasa no actua com a intermediari financer. La informació proporcionada té caràcter orientatiu, basant-se en informació pública al mercat. Serà l'entitat de crèdit qui contacti amb el potencial prestatari per negociar, facilitar i pactar les condicions financeres aplicables.
Tria la Fibra que millor s'adapti a tu.
Contracta llum i gas online, sense permanència.
Explica'ns què hi has vist per poder corregir-ho.