Connecta la teva llar
Tria la Fibra que millor s'adapti a tu.
Casares
Ubicada en Marina de Casares, cerca Estepona Golf, con fácil acceso a tiendas, restaurantes, colegios y zonas de ocio. En el oeste de la Costa del Sol, pero cerca de las vibrantes ciudades de Marbella y Estepona. A un corto trayecto en coche del centro de Estepona y con fácil acceso al Aeropuerto Internacional de Málaga y Gibraltar.
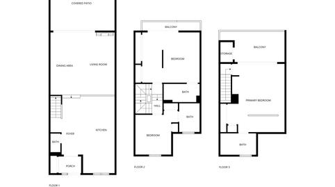
Una luminosa casa adosada con orientación sur, bien distribuida en tres plantas, se encuentra en una pequeña comunidad de casas frente al mar, con acceso directo a la playa a través de la puerta comunitaria. La propiedad ha sido completamente reformada con altos calidades, con carpintería nueva, paneles solares, persianas de seguridad, alarma, muchos toques personales y electrodomésticos modernos. Cuenta con ventanales de suelo a techo, y acabados de alta calidad.
La impresionante puerta principal da paso a una cocina-salón abierto que da a un patio privado con vistas directas al mar y una puerta de acceso a la zona comunitaria. La cocina está equipada con electrodomésticos modernos y es amplia, con mucho espacio de almacenamiento.
Una escalera con luces LED y sensores llega a la primera planta, donde se encuentran dos dormitorios con baño privado. El primer dormitorio es amplio, con amplios armarios empotrados y una terraza con impresionantes vistas al mar. El baño privado es elegante y de un tamaño ideal. El segundo dormitorio también cuenta con armarios empotrados y un baño moderno.
En la planta superior se encuentra el dormitorio principal con baño en suite, armarios empotrados e impresionantes vistas al mar, además de su propia terraza donde podrá disfrutar contemplando el mar.
Esta casa, lista para entrar a vivir, está cuidada al detalle y es perfecta para disfrutar, con vistas inmejorables. ¡Salga del salón y disfrute de la playa! Llame ahora para visitarla.
Tipus d'immoble
Disponibilitat
Ascensor
Moblat
Energia
Emissions
Tipus d'interès
Quota mensual estimada
3.405 € *
* Provisional subjecte a estudi i oferta de CaixaBank
Servei ofert per
Fotocasa no actua com a intermediari financer. La informació proporcionada té caràcter orientatiu, basant-se en informació pública al mercat. Serà l'entitat de crèdit qui contacti amb el potencial prestatari per negociar, facilitar i pactar les condicions financeres aplicables.
Desglossament de la hipoteca
La teva quota mensual
3.405 € *
Durant 30 anys (360 quotes)
* Provisional subjecte a estudi i oferta de CaixaBank
Preu de l'immoble:
999.000 €
Impostos i despeses de la compra:
62.437 €
Cost total de l'immoble:
1.061.437 €
Estalvi aportat:
199.800 €
Import de la hipoteca:
861.637 €
Interessos totals:
363.986 €
Cost total amb hipoteca
1.425.423 €
Capital + interessos + impostos i despeses
Fotocasa no actua com a intermediari financer. La informació proporcionada té caràcter orientatiu, basant-se en informació pública al mercat. Serà l'entitat de crèdit qui contacti amb el potencial prestatari per negociar, facilitar i pactar les condicions financeres aplicables.
Tria la Fibra que millor s'adapti a tu.
Contracta llum i gas online, sense permanència.
Explica'ns què hi has vist per poder corregir-ho.