Connecta la teva llar
Tria la Fibra que millor s'adapti a tu.





Catarroja
EDIFICIO en VENTA en CENTRO DE CATARROJA
Vendemos este edificio completo en Catarroja con de 950m2 distribuidos en 4 plantas. Construido en 2005, es de clasificación urbana con uso de oficinas, y el PROYECTO de cambio de uso a RESIDENCIAL se encuentra ya en trámite por la parte vendedora, ofreciendo una excelente oportunidad de inversión. Se vende el edificio y el proyecto de cambio de uso ya en proceso y totalmente pagado al ayuntamiento.
El edificio destaca por su moderna fachada con 12 amplios ventanales de cristal, que aportan gran luminosidad natural a todas las plantas. Gracias a sus metros y distribución, ofrece muchas posibilidades.
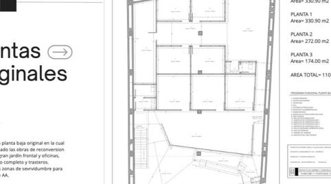
Planta baja: 331 m²
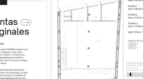
Primera planta: 239 m²
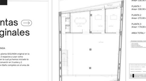
Segunda planta: 234 m²
ATICO Tercera planta: 196 m² (incluye terraza de 91 m²)
Total superficie construida: 950 m²
Proyectos compatibles; que se podrían realizar a futuro, no incluidos actualmente:
- 10 apartamentos (3 por planta) más 1 en el Ático con terraza de 80 m2.
- 8 pisos (2 por planta)
- Local comercial en PB y 3 viviendas de lujo (1 por planta)
Características destacadas:
Año de construcción: 2005
Uso actual: Oficinas (cambio de uso a residencial en proceso)
Fachada con 12 ventanales de cristal, gran luminosidad, suelos de MARMOL, altura 2.60m libre.
Edificio completo independiente
5 plazas de garaje incluidas en el precio muy cerca del edificio
Excelente oportunidad de inversión con alta rentabilidad
Tipus d'immoble
Disponibilitat
Estat
Antiguitat
Ascensor
Moblat
Energia
Emissions
Tipus d'interès
Quota mensual estimada
3.566 € *
* Provisional subjecte a estudi i oferta de CaixaBank
Ja estàs buscant finançament?
T'ajudem a trobar l'opció que millor s'adapta a tu.
Servei ofert per
Fotocasa no actua com a intermediari financer. La informació proporcionada té caràcter orientatiu, basant-se en informació pública al mercat. Serà l'entitat de crèdit qui contacti amb el potencial prestatari per negociar, facilitar i pactar les condicions financeres aplicables.
La teva quota mensual
3.566 € *
Durant 30 anys (360 quotes)
* Provisional subjecte a estudi i oferta de CaixaBank
Preu de l'immoble:
999.999 €
Impostos i despeses:
102.497 €
Cost total de l'immoble:
1.102.496 €
Estalvi aportat:
200.000 €
Import de la hipoteca:
902.496 €
Interessos totals:
381.246 €
Cost total amb hipoteca
1.483.742 €
Capital + interessos + impostos i despeses
Ja estàs buscant finançament?
T'ajudem a trobar l'opció que millor s'adapta a tu.
Servei ofert per
Fotocasa no actua com a intermediari financer. La informació proporcionada té caràcter orientatiu, basant-se en informació pública al mercat. Serà l'entitat de crèdit qui contacti amb el potencial prestatari per negociar, facilitar i pactar les condicions financeres aplicables.
Tria la Fibra que millor s'adapti a tu.
Estalvia un 30% en un servei de 5 estrelles.
Explica'ns què hi has vist per poder corregir-ho.