Calcula la teva hipoteca
Compara ofertes dels diferents bancs.
Esplugues de Llobregat
En una ubicación privilegiada, junto al Parque de Can Vidalet y a pocos minutos de Barcelona ciudad, se desarrolla esta promoción de 6 viviendas exclusivas con piscina comunitaria.
El edificio se encuentra en la renovada calle Hipatia de Alejandría, dentro de un entorno tranquilo y residencial, con excelentes conexiones: a solo 2 minutos de la estación de metro L5 Can Vidalet y con acceso rápido a la Ronda de Dalt (salida 12).
Es un proyecto de diseño que destaca por su alta eficiencia energética, el uso de sistema de aerotermia y materiales de primera calidad.
Vivienda en Planta Segunda
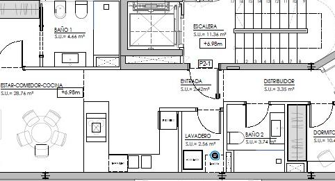
Distribuida en 3 dormitorios (uno en formato suite), 2 baños completos, salón-comedor con salida a terraza, cocina abierta totalmente equipada, lavadero independiente y una segunda terraza en la parte posterior.
Esta vivienda ocupa toda la planta, sin vecinos en el mismo nivel, y cuenta con doble orientación, con balcones en ambas fachadas, lo que garantiza luz natural y ventilación cruzada durante todo el día.
Superficie total construida: 105,86 m²
Incluye trastero y acceso a la zona comunitaria con piscina.
Tipus d'immoble
Antiguitat
Planta
Ascensor
Moblat
Consum energia
Emissions
Compara ofertes dels diferents bancs.
Tria la Fibra que millor s'adapti a tu.
Estalvia un 30% en un servei de 5 estrelles.
Explica'ns què hi has vist per poder corregir-ho.