Calcula la teva hipoteca
Compara ofertes dels diferents bancs.
Gandia
Vivienda a Estrenar
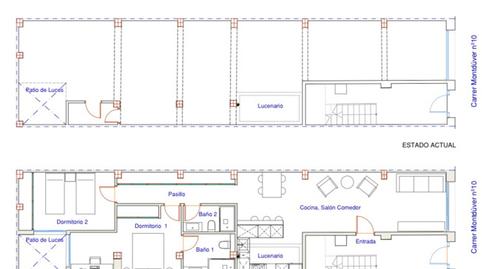
En proceso de reforma integral, esta propiedad se convertirá en un piso moderno y funcional con:
2 habitaciones (principal con baño en suite)
Salón-comedor amplio
Cocina con barra americana
Patio privado
Estrena vivienda totalmente nueva
Distribución práctica y luminosa
Excelente oportunidad de inversión
Ubicación céntrica y bien comunicada. ( El PVP indicado no incluye impuestos ni gastos de Escritura ).
PARA PROPIETARIOS:
¿Necesitas vender para comprar? te ayudamos coordinándolo todo y con hipoteca cambio de casa.
¿Tienes prisa en vender? te ofrecemos una venta rápida con todas las garantías.
¿Necesitas una hipoteca? en donpiso la encuentras y en condiciones preferentes.
¿Herencias?, ¿Divorcios?, te ayudamos y coordinamos todo.
Infórmate: 963 619 794 - gandiacentro@donpiso.com
Tipus d'immoble
Antiguitat
Planta
Consum energia
Emissions
Compara ofertes dels diferents bancs.
Tria la Fibra que millor s'adapti a tu.
Estalvia un 30% en un servei de 5 estrelles.
Explica'ns què hi has vist per poder corregir-ho.