Connecta la teva llar
Tria la Fibra que millor s'adapti a tu.
L'Ametlla de Mar
En construcción. Procomar tiene el placer de presentarles la nueva promoción Residencial Cala Pepo. Obra nueva compuesta por ocho viviendas adosadas con jardines privados y zona comunitaria con piscina. Se encuentra situada en L'Ametlla de Mar, en un sector residencial frente a la Cala Pepo, en un entorno privilegiado. La población, que dispone de todos los servicios, es un típico pueblo de pescadores que todavía conserva su encanto. Lugar ideal donde disfrutar de la naturaleza y vivir abierto al Mediterráneo.
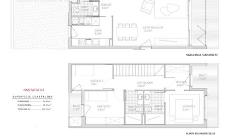
Estas viviendas tienen una superficie unitaria de 115 m2, se ubican en la parte más próxima al mar, de manera que gozan de buenas vistas, orientadas al sureste, muy próximas al puerto y al centro histórico. Todas las viviendas disponen de generosos espacios abiertos en forma de terrazas o jardines. Son casas de estilo moderno con acabados de calidad, donde prima el confort, la ecología y sostenibilidad.
Las viviendas se desarrollan en dos plantas: planta baja distribuida en recibidor, aseo, cocina independiente, salón comedor y terraza, y planta superior distribuida en tres habitaciones (de las cuales una suite con baño y vestidor), dos baños y terrazas. Cada vivienda de dispone de jardín privativo y plaza de parking descubierta.
Fachadas con revoco de monocapa, cámara de aire, aislamiento térmico y acústico.
Carpintería exterior de aluminio con doble cristal y rotura de puente térmico. Persianas motorizadas. Carpintería interior lacada en blanco. Armarios empotrados.
Suelos en parquet laminado. Pavimento y revestimiento porcelánico en cocina y baños.
Cocina con muebles color blanco con acabado estratificado. Encimera Neolith o similar. Electrodomésticos Bosch o similar, cocina de inducción y horno eléctrico, extractor Pando. Fregadero marca Kios con grifería monomando.
En baños los sanitarios serán blancos. Inodoros marca Ideal Standard modelo Connect, platos de ducha de resinas blanco, lavabos modelo Strada de Ideal Standard, Griferías monomando Paffoni modelo en lavabo y termostática vista con conjunto de ducha Raindance.
Cada una de las viviendas estará dotada de una instalación térmica individual de equipos de aerotermia, que alimentará tanto la producción de agua caliente sanitaria como los equipos de clima. Las unidades interiores o de distribución serán tipo fan-coil en falso techo. Los equipos serán de la marca Panasonic o similar y garantizarán las demandas térmicas de frio y calor de la vivienda.
Puerta de entrada blindada con cerradura de seguridad. Viviendas con video-portero. Terrazas iluminadas. Jardines independientes con valla de 1.50 m de altura y seto.
Jardín comunitario con piscina.
Obra en construcción con entrega en julio de 2026
No dude en contactarnos para recibir más información.
Tipus d'immoble
Orientació
Antiguitat
Pàrquing
Moblat
Consum energia
Emissions
Tipus d'interès
Quota mensual estimada
1.253 € *
* Provisional subjecte a estudi i oferta de CaixaBank
Ja estàs buscant finançament?
T'ajudem a trobar l'opció que millor s'adapta a tu.
Servei ofert per
Fotocasa no actua com a intermediari financer. La informació proporcionada té caràcter orientatiu, basant-se en informació pública al mercat. Serà l'entitat de crèdit qui contacti amb el potencial prestatari per negociar, facilitar i pactar les condicions financeres aplicables.
La teva quota mensual
1.253 € *
Durant 30 anys (360 quotes)
* Provisional subjecte a estudi i oferta de CaixaBank
Preu de l'immoble:
350.000 €
Impostos i despeses:
37.199 €
Cost total de l'immoble:
387.199 €
Estalvi aportat:
70.000 €
Import de la hipoteca:
317.199 €
Interessos totals:
133.996 €
Cost total amb hipoteca
521.195 €
Capital + interessos + impostos i despeses
Ja estàs buscant finançament?
T'ajudem a trobar l'opció que millor s'adapta a tu.
Servei ofert per
Fotocasa no actua com a intermediari financer. La informació proporcionada té caràcter orientatiu, basant-se en informació pública al mercat. Serà l'entitat de crèdit qui contacti amb el potencial prestatari per negociar, facilitar i pactar les condicions financeres aplicables.
Tria la Fibra que millor s'adapti a tu.
Estalvia un 30% en un servei de 5 estrelles.
Explica'ns què hi has vist per poder corregir-ho.