Connecta la teva llar
Tria la Fibra que millor s'adapti a tu.
La Vall de Bianya
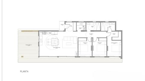
Es ven parcel·la de 405m2 totalment plana amb construcció d'obra nova d'una casa de 90m² construïts d'habitatge més 31m² de terrassa amb sortida des del saló i les habitacions tot en una planta amb qualificació energètica A. Consta de tres dormitoris dobles, un d'ells en suite, safareig i cuina integrada amb el saló menjador obert al porxo i al jardí fent una sensació d'amplitud i de llum natural excel·lents. Es lliura amb cuina equipada amb mobiliari, forn, placa de cocció i campana extractora, sistema de ventilació mecànica i aerotèrmia per a aigua sanitària, els tancaments exteriors són d'alumini amb trencament de pont tèrmic i doble vidre, això juntament amb els aïllants ecològics interiors i exteriors farà que el teu consum energètic en un any sigui un 70% inferior al d'un habitatge d'obra tradicional. L'habitatge no està construïda pel que si vols fer modificacions a la distribució, vols més o menys metres de superfície, una planta més o acabats interiors o exteriors podem construir-te-la a mesura. El preu publicat en aquest anunci inclou la compra de la parcel·la, moviments de terra, tancament frontal parcel.la, porta accés peatonal, porta accés per a vehicles, pavimentació de la rampa d’accés més la construcció claus en mà de l'habitatge descrit en aquest, qualsevol variació en el disseny, mesures o materials pot fer canviar el preu final de construcció. A Rico Properties ens comprometem per escrit amb un preu final d'obra i un temps màxim d'execució de sis mesos per a lliurar-te les claus, des del moment que iniciem la construcció després de l’obtenció de la llicència d’obres. A Rico Properties només construïm amb materials sostenibles, saludables i altament eficients energèticament per a què viure en la teva nova casa sigui un plaer així com un lloc per al teu benestar i el de la teva família. El preu no inclou les taxes municipals quant a la llicència d'obres ni les connexions amb les companyies de llum i aigua per a obtenir els subministraments. El preu no inclou els impostos ni les despeses de notaria i registre
Tipus d'immoble
Estat
Moblat
Consum energia
Emissions
Tipus d'interès
Quota mensual estimada
1.132 € *
* Provisional subjecte a estudi i oferta de CaixaBank
Ja estàs buscant finançament?
T'ajudem a trobar l'opció que millor s'adapta a tu.
Servei ofert per
Fotocasa no actua com a intermediari financer. La informació proporcionada té caràcter orientatiu, basant-se en informació pública al mercat. Serà l'entitat de crèdit qui contacti amb el potencial prestatari per negociar, facilitar i pactar les condicions financeres aplicables.
La teva quota mensual
1.132 € *
Durant 30 anys (360 quotes)
* Provisional subjecte a estudi i oferta de CaixaBank
Preu de l'immoble:
316.000 €
Impostos i despeses:
33.799 €
Cost total de l'immoble:
349.799 €
Estalvi aportat:
63.200 €
Import de la hipoteca:
286.599 €
Interessos totals:
121.070 €
Cost total amb hipoteca
470.869 €
Capital + interessos + impostos i despeses
Ja estàs buscant finançament?
T'ajudem a trobar l'opció que millor s'adapta a tu.
Servei ofert per
Fotocasa no actua com a intermediari financer. La informació proporcionada té caràcter orientatiu, basant-se en informació pública al mercat. Serà l'entitat de crèdit qui contacti amb el potencial prestatari per negociar, facilitar i pactar les condicions financeres aplicables.
Tria la Fibra que millor s'adapti a tu.
Estalvia un 30% en un servei de 5 estrelles.
Explica'ns què hi has vist per poder corregir-ho.