Connecta la teva llar
Tria la Fibra que millor s'adapti a tu.
Legazpi
En el corazón de Legazpi, en la céntrica Kale Nagusia, se va a levantar un nuevo edificio de viviendas de 5 alturas que combina comodidad, accesibilidad y calidad de vida.
Esta nueva promoción ofrece pisos de 2 y 3 habitaciones, así como exclusivos áticos en la última planta, diseñados con materiales de primera calidad y distribuciones pensadas para el día a día.
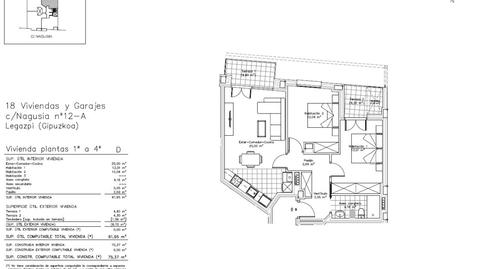
Las viviendas de 3 habitaciones cuentan con un amplio salón-cocina-comedor, dos baños (uno de ellos incorporado en la habitación principal), terraza de 4,5 m² y un generoso hall de entrada.
Por su parte, las viviendas de 2 habitaciones se distribuyen en un acogedor hall de entrada, salón-cocina-comedor, un baño completo y dos terrazas de más de 4 m², una de ellas con tendedero.
El edificio dispone de ascensor a cota cero y sin barreras arquitectónicas, garantizando una total accesibilidad.
Edificio con calificación energética tipo A, agua caliente mediante aerotermia y calefacción con suelo radiante para un confort óptimo y bajo consumo. Vive en un hogar moderno, sostenible y eficiente.
Además, existe la posibilidad de adquirir garajes cerrados tanto en planta baja como en planta sótano, con acceso directo al portal.
Una oportunidad única para quienes buscan vivir con comodidad, en una ubicación privilegiada y con todos los servicios al alcance: comercios, colegios, transporte y zonas verdes.
Tu nuevo hogar te espera en Kale Nagusia, Legazpi.
Contáctanos ahora y da el paso hacia tu nuevo hogar.
Legazpiko erdiguneko Kale Nagusian, 5 altuerako etxebizitza-eraikin berri bat eraikiko da, erosotasuna, irisgarritasuna eta bizi-kalitatea uztartzen dituena.
Sustapen berri honek 2 eta 3 logelako pisuak eskaintzen ditu, baita azken solairuan bi atiko ere, kalitate handiko materialekin eta egunerokotasunerako pentsatutako banaketekin diseinatuak.
3 logelako etxebizitzek egongela-sukalde-jangela zabala, bi bainugela (horietako bat logela nagusian), 4,5 m²-ko terraza eta sarrerako hall zabala dituzte.
Bestalde, 2 logelako etxebizitzak honela daude banatuta: sarrerako hall atsegina, egongela-sukalde-jangela, bainugela osoa eta 4 m²-tik gorako bi terraza, horietako bat esekitokiarekin.
Eraikinak igogailua du zero kotan eta arkitektura-oztoporik gabe, erabateko irisgarritasuna bermatuz.
A motako kalifikazio energetikoa duen eraikina, aerotermia bidezko ur beroa eta zoru erradiatzailea duen berogailua, erosotasun optimoa eta kontsumo baxua lortzeko. Etxe moderno, iraunkor eta eraginkor batean bizitzeko aukera.
Gainera, garaje itxiak erosteko aukera dago, bai beheko solairuan, bai sotoan, atarirako zuzeneko sarbidearekin.
Aukera paregabea erosotasunez bizi nahi dutenentzat, kokapen pribilegiatuan eta eskura dauden zerbitzu guztiekin: saltokiak, ikastetxeak, garraioa eta berdeguneak.
Zure etxe berria zain duzu Legazpiko Kale Nagusian.
Jarri gurekin harremanetan orain eta eman pausoa zure etxe berrirako.
Tipus d'immoble
Disponibilitat
Orientació
Calefacció
Ascensor
Moblat
Energia
Emissions
Tipus d'interès
Quota mensual estimada
738 € *
* Provisional subjecte a estudi i oferta de CaixaBank
Ja estàs buscant finançament?
T'ajudem a trobar l'opció que millor s'adapta a tu.
Servei ofert per
Fotocasa no actua com a intermediari financer. La informació proporcionada té caràcter orientatiu, basant-se en informació pública al mercat. Serà l'entitat de crèdit qui contacti amb el potencial prestatari per negociar, facilitar i pactar les condicions financeres aplicables.
La teva quota mensual
738 € *
Durant 30 anys (360 quotes)
* Provisional subjecte a estudi i oferta de CaixaBank
Preu de l'immoble:
215.000 €
Impostos i despeses:
14.896 €
Cost total de l'immoble:
229.896 €
Estalvi aportat:
43.000 €
Import de la hipoteca:
186.896 €
Interessos totals:
78.951 €
Cost total amb hipoteca
308.847 €
Capital + interessos + impostos i despeses
Ja estàs buscant finançament?
T'ajudem a trobar l'opció que millor s'adapta a tu.
Servei ofert per
Fotocasa no actua com a intermediari financer. La informació proporcionada té caràcter orientatiu, basant-se en informació pública al mercat. Serà l'entitat de crèdit qui contacti amb el potencial prestatari per negociar, facilitar i pactar les condicions financeres aplicables.
Tria la Fibra que millor s'adapti a tu.
Estalvia un 30% en un servei de 5 estrelles.
Explica'ns què hi has vist per poder corregir-ho.