Connecta la teva llar
Tria la Fibra que millor s'adapti a tu.
Los Villares
Oportunidad de Bonita Casa Junto al Río Elche.
Esta vivienda se encuentra situada en Los Villares, a menos de diez minutos en coche de la capital. Ubicada en una de las mejores zonas de su entorno gracias a que posee unas bonitas vistas del entorno natural. La vivienda, se encuentra a escasos minutos de la Plaza Fernando Feijóo. Cuenta con todos los servicios de la zona: Colegios CEIP Nuestra señora del Rosario, Supermercados (Alsara y Masymas) Cafeterías, Ferreterías, Farmacias y Bares, etc.
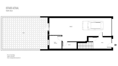
La casa, consta de tres plantas muy luminosas. En planta baja con nos encontramos con un amplio hall de entrada, un enorme garaje con cabida para dos coches grandes, dos estancias destinadas a almacenamiento y gran y luminoso patio.
En la primera planta nos encontramos con un pasillo distribuidor que comunica con el Salón- Comedor siendo este muy espacioso, una Cocina totalmente amueblada dotada de un siempre útil lavadero y con acceso a una bonita terraza, y un completo cuarto de baño con plato de ducha y ventilación directa. Además de disponer de un armario empotrado en el pasillo que se puede destinar a despensero.
La segunda planta consta de un gran dormitorio principal junto con un vestidor y otros dos amplios dormitorios, y un completo cuarto de baño común con bañera y ventilación directa. Además, también cuenta con varios armarios empotrados en el pasillo para un fácil y cómodo almacenaje.
El estado de conservación es muy bueno, tal y como se puede comprobar en el reportaje fotográfico. Entre sus calidades encontramos: solerías de gres porcelánico en toda la vivienda excepto en los tres dormitorios que prevalece la tarima flotante, aire acondicionado mediante split independiente con bomba de frío/calor en el salón, carpintería exterior de aluminio lacada en blanco con cristalería climalit, mosquiteras y ventanas oscilobatientes, puertas de madera, pintura lisa, termo eléctrico, calefacción eléctrica, preinstalación de fibra, etc.
La vivienda se entrega semi-amueblada excepto los electrodomésticos como el frigorífico y enseres personales.
En definitiva, una estupenda oportunidad de adquirir una fantástica vivienda para entrar a vivir con todas las comodidades.
BUSCOMICASA.ES
Soluciones Inmobiliarias Integrales
Encuentra más en http://www.buscomicasa.es
Tipus d'immoble
Disponibilitat
Orientació
Estat
Antiguitat
Ascensor
Moblat
Energia
Emissions
Tipus d'interès
Quota mensual estimada
585 € *
* Provisional subjecte a estudi i oferta de CaixaBank
Ja estàs buscant finançament?
T'ajudem a trobar l'opció que millor s'adapta a tu.
Servei ofert per
Fotocasa no actua com a intermediari financer. La informació proporcionada té caràcter orientatiu, basant-se en informació pública al mercat. Serà l'entitat de crèdit qui contacti amb el potencial prestatari per negociar, facilitar i pactar les condicions financeres aplicables.
La teva quota mensual
585 € *
Durant 30 anys (360 quotes)
* Provisional subjecte a estudi i oferta de CaixaBank
Preu de l'immoble:
170.000 €
Impostos i despeses:
12.103 €
Cost total de l'immoble:
182.103 €
Estalvi aportat:
34.000 €
Import de la hipoteca:
148.103 €
Interessos totals:
62.564 €
Cost total amb hipoteca
244.667 €
Capital + interessos + impostos i despeses
Ja estàs buscant finançament?
T'ajudem a trobar l'opció que millor s'adapta a tu.
Servei ofert per
Fotocasa no actua com a intermediari financer. La informació proporcionada té caràcter orientatiu, basant-se en informació pública al mercat. Serà l'entitat de crèdit qui contacti amb el potencial prestatari per negociar, facilitar i pactar les condicions financeres aplicables.
Tria la Fibra que millor s'adapti a tu.
Contracta llum i gas online, sense permanència.
Explica'ns què hi has vist per poder corregir-ho.