Connecta la teva llar
Tria la Fibra que millor s'adapti a tu.
Madrid Capital
Chalet exclusivo con ascensor y piscina privada en Conde de Orgaz Arturo Soria
Descubre este chalet adosado de esquina en una de las zonas más prestigiosas de Madrid. Una vivienda única por su amplitud, luminosidad y ubicación, ideal para familias que buscan calidad de vida, privacidad y todos los servicios cerca.
Distribución perfecta en 4 plantas con ascensor:
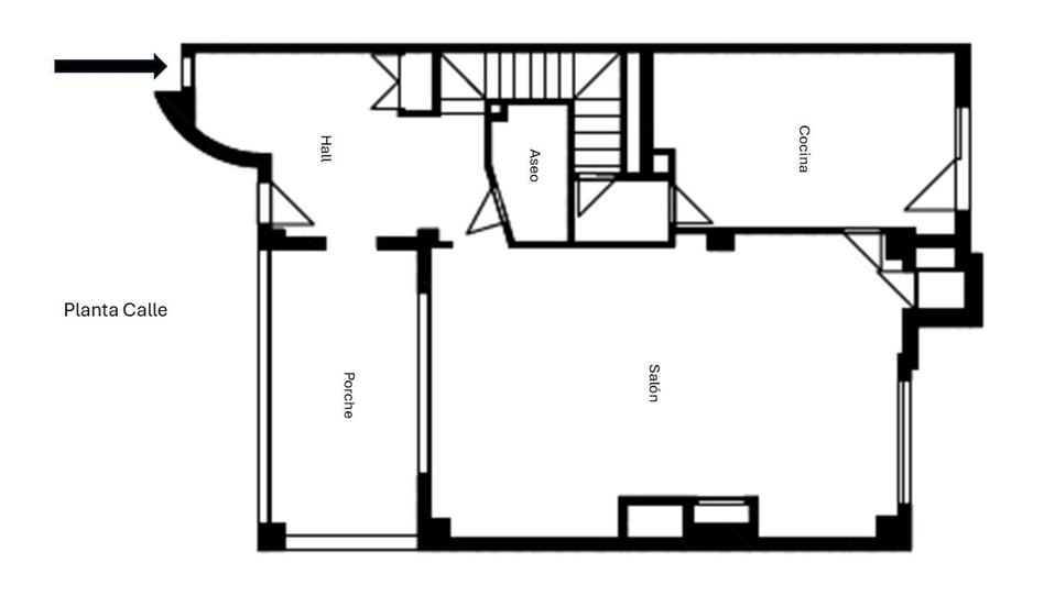
Planta principal: elegante porche de entrada, amplio salón-comedor con salida directa al jardín, cocina independiente totalmente equipada y aseo de cortesía. Jardín con piscina privada y zona de descanso.
Primera planta: dos dormitorios con armarios empotrados y baño completo, además del dormitorio principal en suite con ba?o incorporado y amplios ventanales.
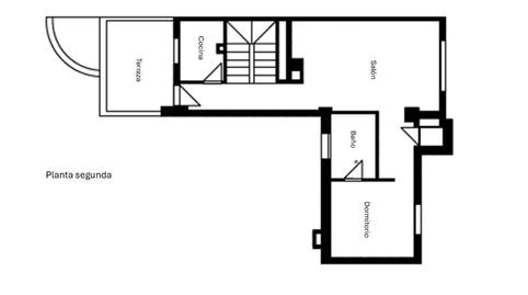
Segunda planta: espacio tipo apartamento independiente, con salón, cocina integrada, dormitorio, baño completo y terraza privada con vistas despejadas, si prefieres esta planta se puede transformar fácilmente un tu gran suite con vestidor, baño, despacho y terraza.
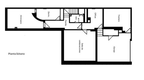
Planta sótano: dormitorio de servicio con baño, dos estancias polivalentes (gimnasio, despacho, sala de juegos...), office, trastero y garaje privado.
Detalles que marcan la diferencia:
Ascensor privado en todas las plantas
Montacargas de platos
Gran luminosidad natural en todas las estancias
Espacios amplios, funcionales y con múltiples opciones de personalización
Ubicación privilegiada:Situado en el Corazón de Conde de Orgaz Arturo Soria, una de las zonas residenciales más demandadas de Madrid.A un paso de colegios internacionales, hospitales, supermercados, zonas verdes y el Centro Comercial Arturo Soria Plaza.Excelente comunicación con metro, varias líneas de autobús y f?cil acceso a M-30, M-40, M-11, A1 y A2.
Una oportunidad única para vivir en una de las mejores áreas de Madrid, perfecta para familias grandes o como inversión de alta rentabilidad.Ven a visitarla y déjate enamorar por su encanto, su luz y su exclusividad!Algunas de las fotografías don infografías creadas por la IA
Tipus d'immoble
Disponibilitat
Calefacció
Estat
Antiguitat
Ascensor
Moblat
Energia
Emissions
Tipus d'interès
Quota mensual estimada
6.641 € *
* Provisional subjecte a estudi i oferta de CaixaBank
Ja estàs buscant finançament?
T'ajudem a trobar l'opció que millor s'adapta a tu.
Servei ofert per
Fotocasa no actua com a intermediari financer. La informació proporcionada té caràcter orientatiu, basant-se en informació pública al mercat. Serà l'entitat de crèdit qui contacti amb el potencial prestatari per negociar, facilitar i pactar les condicions financeres aplicables.
La teva quota mensual
6.641 € *
Durant 30 anys (360 quotes)
* Provisional subjecte a estudi i oferta de CaixaBank
Preu de l'immoble:
1.950.000 €
Impostos i despeses:
120.785 €
Cost total de l'immoble:
2.070.785 €
Estalvi aportat:
390.000 €
Import de la hipoteca:
1.680.785 €
Interessos totals:
710.023 €
Cost total amb hipoteca
2.780.808 €
Capital + interessos + impostos i despeses
Ja estàs buscant finançament?
T'ajudem a trobar l'opció que millor s'adapta a tu.
Servei ofert per
Fotocasa no actua com a intermediari financer. La informació proporcionada té caràcter orientatiu, basant-se en informació pública al mercat. Serà l'entitat de crèdit qui contacti amb el potencial prestatari per negociar, facilitar i pactar les condicions financeres aplicables.
Tria la Fibra que millor s'adapti a tu.
Contracta llum i gas online, sense permanència.
Explica'ns què hi has vist per poder corregir-ho.