Connecta la teva llar
Tria la Fibra que millor s'adapti a tu.
Málaga Capital
Presentamos esta magnífica vivienda familiar ubicada en una de las zonas más demandadas de Málaga Este. Una ubicación privilegiada: un bonito paseo a la playa, rodeada de un vecindario tranquilo y seguro, cerca de los mejores colegios de la ciudad y con excelentes conexiones tanto con el centro de Málaga como con la autovía y el aeropuerto.
La casa, orientada al sur, ofrece un estilo de vida cómodo y práctico para familias con niños. Dispone de parcela con piscina soleada, zona de solárium con césped artificial, un bonito jardín con flores y árboles frutales —mandarino y limonero—, además de una cuidada zona de barbacoa con alacena y un amplio porche con dos ambientes ideales para reuniones y cenas al aire libre.
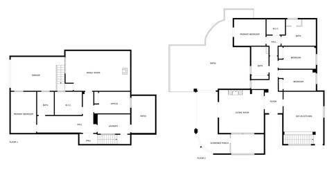
La vivienda se distribuye en dos plantas bien diferenciadas. En la planta principal encontramos una amplia cocina con encimera de mármol, espacio para desayunar y gran capacidad de almacenamiento. El salón, muy luminoso y con chimenea, conecta directamente con el porche, lo que facilita la vida familiar y social al integrar interior y exterior. En esta misma planta se ubican tres dormitorios. Dos de ellos comparten un baño completo en el pasillo, mientras que el dormitorio principal dispone de vestidor y un amplio baño en suite. Tanto desde el salón como desde la cocina y el dormitorio principal se accede directamente al porche y a la piscina, lo que aporta gran comodidad en el día a día.
La planta inferior ofrece múltiples posibilidades de uso gracias a sus generosos espacios. Aquí se encuentra un gran salón ideal para reuniones familiares, un despacho perfecto para trabajar desde casa, un dormitorio de invitados, un vestidor con ventana y un baño completo. Además, esta planta cuenta con un cuarto de lavandería con salida a una terraza y se completa con un espacioso garaje cubierto.
La construcción es sólida y todas las estancias son exteriores, con techos altos que aportan amplitud y luminosidad. La vivienda cuenta con aire acondicionado tipo split, instalación de placas solares para agua caliente y piscina con zona de solárium.
¿Qué es lo que realmente la hace especial? Su ubicación. A solo un corto paseo de la playa y rodeada de un vecindario seguro y tranquilo, esta vivienda también ofrece algo invaluable para las familias: la cercanía a los mejores colegios de Málaga, como el British School, el Lycée Français, el Yago International School, San Estanislao, el Platero Green School, entre otros, todos a un paso.
Una casa lista para disfrutar en familia, en una de las mejores zonas residenciales de Málaga.
Tipus d'immoble
Disponibilitat
Ascensor
Moblat
Energia
Emissions
Tipus d'interès
Quota mensual estimada
3.391 € *
* Provisional subjecte a estudi i oferta de CaixaBank
Servei ofert per
Fotocasa no actua com a intermediari financer. La informació proporcionada té caràcter orientatiu, basant-se en informació pública al mercat. Serà l'entitat de crèdit qui contacti amb el potencial prestatari per negociar, facilitar i pactar les condicions financeres aplicables.
Desglossament de la hipoteca
La teva quota mensual
3.391 € *
Durant 30 anys (360 quotes)
* Provisional subjecte a estudi i oferta de CaixaBank
Preu de l'immoble:
995.000 €
Impostos i despeses de la compra:
62.197 €
Cost total de l'immoble:
1.057.197 €
Estalvi aportat:
199.000 €
Import de la hipoteca:
858.197 €
Interessos totals:
362.533 €
Cost total amb hipoteca
1.419.730 €
Capital + interessos + impostos i despeses
Fotocasa no actua com a intermediari financer. La informació proporcionada té caràcter orientatiu, basant-se en informació pública al mercat. Serà l'entitat de crèdit qui contacti amb el potencial prestatari per negociar, facilitar i pactar les condicions financeres aplicables.
Tria la Fibra que millor s'adapti a tu.
Contracta llum i gas online, sense permanència.
Explica'ns què hi has vist per poder corregir-ho.