Connecta la teva llar
Tria la Fibra que millor s'adapti a tu.
Málaga Capital
Esta propiedad es realmente única, diseñada para eventos y ubicada en las montañas de Málaga. Con un terreno que abarca más de 215.000 metros cuadrados, esta finca es ideal para compradores que buscan invertir en un negocio de eventos.
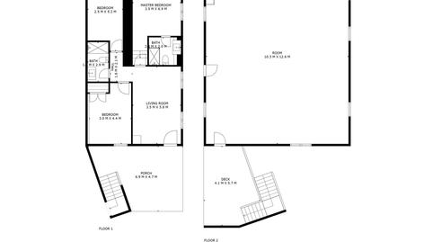
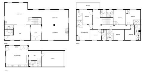
La casa principal es el corazón de esta finca, con 562 metros cuadrados distribuidos en tres plantas. Aquí encontrarás una cocina muy amplia y una bodega en el sótano y un amplio salón. Además, hay 7 dormitorios, cada uno con su propio baño privado, lo que significa que tanto tú como tus invitados disfrutarán de comodidad y privacidad total.
El salón para eventos es simplemente espectacular, con una terraza que ofrece vistas panorámicas de las majestuosas montañas de Málaga. Es el lugar perfecto para celebrar cualquier ocasión especial con estilo y elegancia.
Si deseas aún más privacidad, la propiedad cuenta con un apartamento independiente con 3 dormitorios y además, con una casita que incluye una cocina profesional, baños y un garaje para maquinaria.
No tienes que preocuparte por las comodidades, ya que la finca está equipada con suministro eléctrico, internet y agua de una mina ubicada en la misma propiedad. Además, podrás disfrutar de una refrescante piscina privada y una zona de barbacoa para entretenimiento al aire libre.
La finca también cuenta con establos y otras instalaciones para el cuidado de tus animales. También hay un aljibe para almacenar agua.
No podemos olvidar mencionar los cultivos que adornan esta tierra generosa: los olivos de variedad hojiblanca y manzanilla, los algarrobos, encinas y sus bellotas, las majestuosas paulownias y los almendros. Estos árboles te brindarán productos locales y frescos justo en tu puerta.
En resumen, esta finca es un paraíso donde la naturaleza se combina con el lujo en un entorno inigualable.
Tipus d'immoble
Disponibilitat
Ascensor
Moblat
Energia
Emissions
Tipus d'interès
Quota mensual estimada
7.491 € *
* Provisional subjecte a estudi i oferta de CaixaBank
Ja estàs buscant finançament?
T'ajudem a trobar l'opció que millor s'adapta a tu.
Servei ofert per
Fotocasa no actua com a intermediari financer. La informació proporcionada té caràcter orientatiu, basant-se en informació pública al mercat. Serà l'entitat de crèdit qui contacti amb el potencial prestatari per negociar, facilitar i pactar les condicions financeres aplicables.
La teva quota mensual
7.491 € *
Durant 30 anys (360 quotes)
* Provisional subjecte a estudi i oferta de CaixaBank
Preu de l'immoble:
2.200.000 €
Impostos i despeses:
135.785 €
Cost total de l'immoble:
2.335.785 €
Estalvi aportat:
440.000 €
Import de la hipoteca:
1.895.785 €
Interessos totals:
800.846 €
Cost total amb hipoteca
3.136.631 €
Capital + interessos + impostos i despeses
Ja estàs buscant finançament?
T'ajudem a trobar l'opció que millor s'adapta a tu.
Servei ofert per
Fotocasa no actua com a intermediari financer. La informació proporcionada té caràcter orientatiu, basant-se en informació pública al mercat. Serà l'entitat de crèdit qui contacti amb el potencial prestatari per negociar, facilitar i pactar les condicions financeres aplicables.
Tria la Fibra que millor s'adapti a tu.
Contracta llum i gas online, sense permanència.
Explica'ns què hi has vist per poder corregir-ho.