Calcula la teva hipoteca
Compara ofertes dels diferents bancs.
Mont-roig del Camp
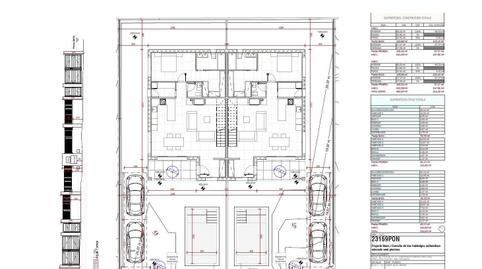
Casa pareada de obra nueva con piscina privada a solo 500 m del mar
Descubre esta exclusiva oportunidad en la Costa Dorada: una espectacular casa pareada de diseño contemporáneo, ubicada en la prestigiosa urbanización Rustical Mont-roig, en el término municipal de Mont-roig del Camp (Tarragona).
Forma parte de un proyecto de dos viviendas unifamiliares con piscina privada, promovido por Sicorax Forum S.L..
¡La otra unidad ya está vendida!
Inicio de obras: inminente | Entrega estimada: octubre de 2026
🏠 Características destacadas de la vivienda
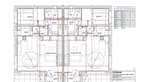
4 dormitorios, uno de ellos en suite en planta baja
2 baños completos + 1 aseo de cortesía
Gran salón-comedor con cocina abierta
Vestidor, trastero, lavadero y porche cubierto
Piscina privada, jardín y terraza solárium
2 plazas de aparcamiento exteriores
Placas solares para autoconsumo
Alta eficiencia energética
Proyecto pensado para el confort, la funcionalidad y la sostenibilidad
Superficie construida: 243,84 m2 | Parcela: 574 m2
🌍 Una ubicación inmejorable para disfrutar todo el año
Situada a tan solo 500 m de la playa, esta casa está rodeada de naturaleza y servicios, perfecta tanto como residencia habitual como segunda residencia de alto nivel:
🚶♀️ Acceso a pie a la playa
🚤 A pocos minutos de puertos deportivos y calas
🚗 A solo 10 km de Cambrils y 20 min del aeropuerto de Reus
🛒 Cerca de Miami Playa, con supermercados, restaurantes y todo tipo de servicios
🏕️ En el entorno de campings 5* como Playa Montroig Resort o La Torre del Sol
🥾 Ideal para amantes del deporte, con rutas de senderismo, bicicleta y naturaleza (Serra de Llaberia y Montsant)
💶 Condiciones de compra
Vivienda 100 % hipotecable (no es autopromoción)
30 % de pago inicial a la firma del contrato privado
70 % restante al finalizar la obra y escriturar
📢 ¡Una sola casa disponible! Vive a un paso del mar con todas las comodidades.
📲 Contacta con VALCUE IMMOBILIÀRIA
Tipus d'immoble
Orientació
Estat
Antiguitat
Pàrquing
Consum energia
Emissions
Compara ofertes dels diferents bancs.
Tria la Fibra que millor s'adapti a tu.
Estalvia un 30% en un servei de 5 estrelles.
Explica'ns què hi has vist per poder corregir-ho.