Connecta la teva llar
Tria la Fibra que millor s'adapti a tu.





Peligros
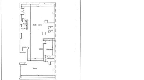
Particular vende magnífico chalet pareado en Urbanización Monteluz. Vivienda apropiada para vivir todo el año con calefacción por gas-oil y aire acondicionado. Totalmente reformado, equipado y listo para entrar a vivir. Superficie construida 280 m2 en tres plantas más torreón. Orientación sur. Parcela en esquina de 460 m2, piscina de 9.5x4.5 m con playa, cuidado jardín, cómodo de mantener y un bonito porche con mesa de comedor. Parada de autobús en la misma puerta. La vivienda, con detalles exclusivos de decoración estructural, cuenta con dos salones. En la planta baja se encuentra un gran salón de 65 m2, con acceso al jardín y abierto a la cocina mediante una barra. Dispone de espacio diferenciado para comedor y zona de estar con chimenea. También dispone de aseo de cortesía con fácil acceso desde el jardín, así como una zona de despensa y cocina auxiliar. En la primera planta se encuentra otro amplio salón de 58 m2 con recibidor, zona de estar, zona de música y home-cinema con pantalla de gran formato. Esta planta dispone también de dos dormitorios y dos baños. Uno de los dormitorios utilizado de despacho o estudio. La segunda planta tiene un amplio baño y tres dormitorios, uno de ellos con vestidor. En el torreón, con extraordinarias vistas, se encuentra la zona de lavado con lavadora, secadora, zona de plancha y tendedero. También puede ser utilizado como zona de ejercicio. La vivienda también cuenta con garaje, así como cuarto trastero. Doble sistema de seguridad con barreras de infrarrojos y cámaras exteriores e interiores conectadas con central de alarmas y acceso vía web. Se vende por jubilación y traslado fuera de Granada. Si se desea, existe la posibilidad de contratar a la asistenta, que es excepcional y totalmente recomendable; lleva con la familia, y en esta casa, más de 30 años.
Tipus d'immoble
Orientació
Estat
Antiguitat
Pàrquing
Consum energia
Emissions
Tipus d'interès
Quota mensual estimada
1.349 € *
* Provisional subjecte a estudi i oferta de CaixaBank
Ja estàs buscant finançament?
T'ajudem a trobar l'opció que millor s'adapta a tu.
Servei ofert per
Fotocasa no actua com a intermediari financer. La informació proporcionada té caràcter orientatiu, basant-se en informació pública al mercat. Serà l'entitat de crèdit qui contacti amb el potencial prestatari per negociar, facilitar i pactar les condicions financeres aplicables.
La teva quota mensual
1.349 € *
Durant 30 anys (360 quotes)
* Provisional subjecte a estudi i oferta de CaixaBank
Preu de l'immoble:
390.000 €
Impostos i despeses:
29.499 €
Cost total de l'immoble:
419.499 €
Estalvi aportat:
78.000 €
Import de la hipoteca:
341.499 €
Interessos totals:
144.261 €
Cost total amb hipoteca
563.760 €
Capital + interessos + impostos i despeses
Ja estàs buscant finançament?
T'ajudem a trobar l'opció que millor s'adapta a tu.
Servei ofert per
Fotocasa no actua com a intermediari financer. La informació proporcionada té caràcter orientatiu, basant-se en informació pública al mercat. Serà l'entitat de crèdit qui contacti amb el potencial prestatari per negociar, facilitar i pactar les condicions financeres aplicables.
Tria la Fibra que millor s'adapti a tu.
Estalvia un 30% en un servei de 5 estrelles.
Explica'ns què hi has vist per poder corregir-ho.