Calcula la teva hipoteca
Compara ofertes dels diferents bancs.
Premià de Mar
En exclusiva para quienes sueñan en grande: casa icónica en el corazón del casco antiguo de Premià de Mar
Presentamos una casa única, una de esas oportunidades que aparecen muy pocas veces: una vivienda histórica con fachada protegida, situada en pleno casco antiguo de Premià de Mar, y con un potencial extraordinario para convertirse en una auténtica joya arquitectónica.
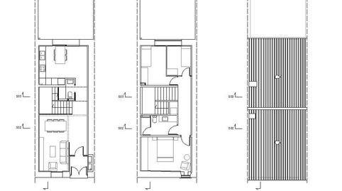
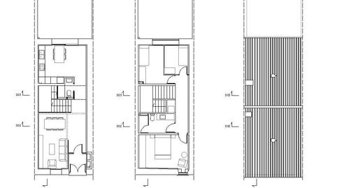
La casa se distribuye actualmente en dos plantas y ofrece la posibilidad de construir una tercera planta bajo cubierta, respetando siempre la normativa de protección vigente. Una vez finalizados los trabajos, el inmueble puede transformarse en:
Planta baja de 60 m²
Primera planta de 60 m²
Buhardilla/bajo cubierta de aproximadamente 30 m²
Patio exterior de 25 m², íntimo y perfecto para crear un oasis en pleno centro
3 baños en total: dos completos y un aseo
Es importante remarcar que la casa requiere una reforma integral. Será necesario rehacer la cubierta, forjados, instalaciones y distribución interior. Esta intervención se considera obra mayor y exige proyecto técnico, lo cual garantiza que la vivienda podrá renacer con todas las garantías estructurales y de habitabilidad.
Pero aquí viene lo verdaderamente especial:
Un lienzo en blanco para crear una de las casas más icónicas de Premià de Mar
Imagina conservar el encanto de la fachada original, combinándolo con un interior totalmente nuevo, luminoso, eficiente y diseñado a tu medida. Los techos altos, el carácter del casco antiguo, la posibilidad de abrir espacios amplios y modernos, la buhardilla con encanto para un estudio o dormitorio de diseño…
El patio se convierte en un pequeño refugio mediterráneo con plantas, luz y privacidad.
Cada planta se convierte en un espacio cálido, contemporáneo y pensado para disfrutar.
Esta es una propiedad para compradores con visión, personas que quieren crear su hogar desde cero, con carácter, personalidad y una estética que destaque entre las casas del centro histórico. Un proyecto con alma para quien busque algo más que una simple vivienda: una pieza única.
Si buscas una casa especial donde desarrollar TU proyecto, darle forma a tus ideas y crear un hogar exclusivo en una de las zonas más queridas del Maresme… esta oportunidad es para ti [IW]
Tipus d'immoble
Orientació
Estat
Antiguitat
Consum energia
Emissions
Compara ofertes dels diferents bancs.
Tria la Fibra que millor s'adapti a tu.
Estalvia un 30% en un servei de 5 estrelles.
Explica'ns què hi has vist per poder corregir-ho.