Connecta la teva llar
Tria la Fibra que millor s'adapti a tu.
Vigo
Precio imbatible! Local con licencia de vivienda de un Dormitorio, con cuarto de baño, lavadero, con dos terrazas, plaza de garaje y ascensor en Barreiro , Vigo.
PROYECTO TÉCNICO DE ADECUACIÓN DE LOCAL PARA USO VIVIENDA
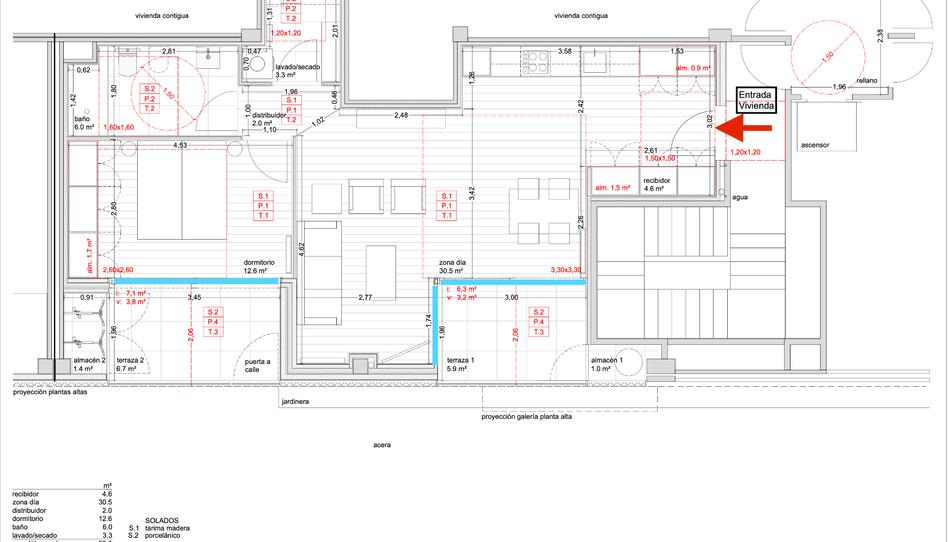
recibidor 4.6 m2
zona día 30.5 m2
distribuidor 2.0 m2
dormitorio 12.6 m2
baño 6.0 m2
lavado/secado 3.3 m2
sup. útil cerrada 59.0 m2
sup. construida cerrada 70.7 m2
--------------------------
almacén 1 1.0 m2
terraza 1 5.9 m2
almacén 2 1.4 m2
terraza 2 6.7 m2
sup. útil abierta 15.0 m2
sup. construida abierta 15.3 m2
SOLADOS
tarima madera
porcelánico
PARAMENTOS
pintura interior
alicatado
pintura exterior
TECHOS
falso techo interior pintado h: 250 cm
falso techo interior pintado h: 240 cm
falso techo exterior pintado h: 235 cm
La vivienda resultante es una vivienda de Protección Oficial autonómica con precios de reventa o alquiler fijados por la Xunta de Galicia.
Cuenta con dos terrazas y grandes ventanales de suelo a techo que otorgan luz natural y ventilación. Actualmente el local se encuentra en estado lóbrego y con el proyecto de ejecución presentado y aprobado por la gerencia de urbanismo del Concello de Vigo, listo para empezar a obrar inmediatamente, ICIO pagado.
Este local es ideal para profesionales y se ubica en el entorno del complejo deportivo Mais que Auga y la residencia de mayores Domus Barreiro, bien comunicado con Colegios, Supermercados, parada de Autobús, etc. La entrada a la futura vivienda se hace desde el portal del edificio, no desde el exterior.
¡Contáctanos hoy mismo para más información y para concertar una visita!
Ado Vigo trabaja con una red de profesionales de la construcción, que nos permite asesorarle sobre las mejores opciones de reforma, instalación y mejoras en materia de eficiencia energética, para adaptar su nueva vivienda a los estándares de 2025, así como opciones de financiación.
El anunciante no se responsabiliza de posibles errores de carácter involuntario que este anuncio pudiera contener, la información proporcionada no tiene valor contractual.
Tipus d'immoble
Disponibilitat
Orientació
Estat
Antiguitat
Garatge
Planta
Ascensor
Moblat
Energia
Emissions
Tipus d'interès
Quota mensual estimada
257 € *
* Provisional subjecte a estudi i oferta de CaixaBank
Servei ofert per
Fotocasa no actua com a intermediari financer. La informació proporcionada té caràcter orientatiu, basant-se en informació pública al mercat. Serà l'entitat de crèdit qui contacti amb el potencial prestatari per negociar, facilitar i pactar les condicions financeres aplicables.
Desglossament de la hipoteca
La teva quota mensual
257 € *
Durant 30 anys (360 quotes)
* Provisional subjecte a estudi i oferta de CaixaBank
Preu de l'immoble:
72.000 €
Impostos i despeses de la compra:
7.501 €
Cost total de l'immoble:
79.501 €
Estalvi aportat:
14.400 €
Import de la hipoteca:
65.101 €
Interessos totals:
27.501 €
Cost total amb hipoteca
107.002 €
Capital + interessos + impostos i despeses
Fotocasa no actua com a intermediari financer. La informació proporcionada té caràcter orientatiu, basant-se en informació pública al mercat. Serà l'entitat de crèdit qui contacti amb el potencial prestatari per negociar, facilitar i pactar les condicions financeres aplicables.
Tria la Fibra que millor s'adapti a tu.
Contracta llum i gas online, sense permanència.
Explica'ns què hi has vist per poder corregir-ho.