Oficina a C. de Manuel Tovar, 33, Tres Olivos - Valverde
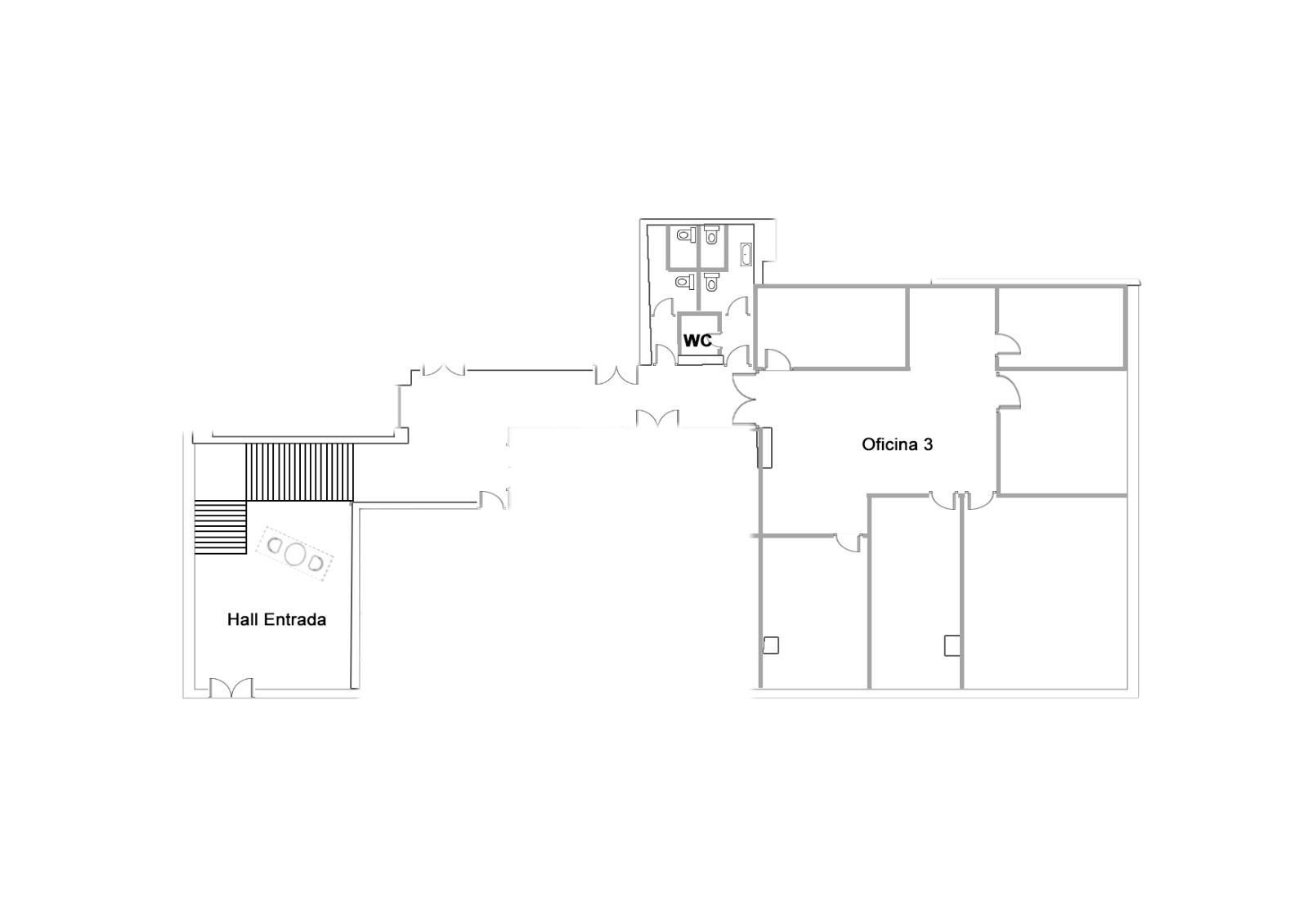
OFICINA CON TERRAZA JUNTO AL HOSPITAL RAMÓN Y CAJAL. Oficina exterior en edificio exclusivo de oficinas con una superficie construida sin elementos comunes es de 506m² (726m² total) distribuidos en planta completa. La oficina se distribuye actualmente en una zona de acceso con recepción y dispone de un sistema de control de acceso por tornos; amplia sala diáfana para implantación en open space de pool de mesas con acceso directo a una terraza de 20m2 aprox.; un despacho y sala de juntas con capacidad para 10 personas con acceso directo a otra terraza de 16m2 aprox.; una sala de formación con capacidad para 20-30 personas y una sala de reuniones para 4 personas. Amplia cocina con office muy luminosa y con fantásticas vistas; sala de IT; almacén y 2 baños con varias cabinas en cada uno, además de otro para minusválidos. Al ser una oficina exterior con forma rectangular, el espacio permite una fácil implantación adaptada a las necesidades de la empresa o mantener la implantación actual. Acabado suelo técnico con PVC de alta resistencia, además de cableado de voz y datos instalado en todas las salas, falso techo con luminarias empotradas y sistema de climatización frío/calor por conductos independizado. La oficina dispone de sistema de seguridad con circuito cerrado de CCTV las 24 horas, sistema de detección de incendios y puertas anti incendios que sectorizan la oficina. Gastos incluidos en renta. El edificio cuenta con servicio de seguridad 24h y 1 ascensor. El precio de la oficina incluye una plaza de aparcamento en el sótano del edificio. Situado en zona con excelentes servicios y comunicaciones tanto en transporte público y privado: con conexión a la M-30 y M-607; la estación de renfe se encuentra a 2 minutos andando, la estación de Chamartín se encuentra a menos de 10 minutos en coche y está a 20 minutos del Aeropuerto Adolfo Suárez. ¿Te imaginas trabajar aquí? Ref. AOM2212008
- 3 baños ·
- 726 m² ·
- 4ª planta ·
- Ascensor