Assegurança d'impagament
Garantim el cobrament de la renda de lloguer
Madrid Capital
¡ALTA DE SUMINISTROS GRATIS!
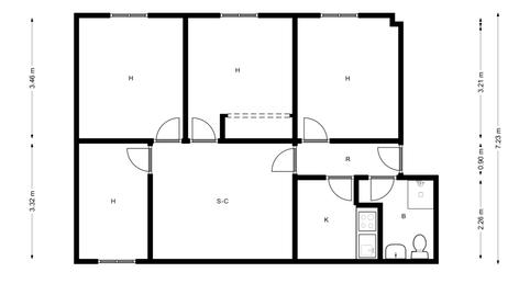
Excelente vivienda de cuatro dormitorios y un baño. Se encuentra en la planta 1 de un edificio residencial. No dispone de ascensor. Situado en Timon en el distrito de Barajas.
La vivienda se distribuye en cuatro dormitorios, armarios empotrados, salón-comedor, cocina independiente y un baño. Cuenta con cocina amueblada y equipada con muebles altos y bajos, vitrocerámica, horno y campana extractora. Dispone de suelos de tarima en cocina, baño y resto de estancias. Cuenta con calefacción individual.
Se encuentra ubicado en Timon, Barajas. Cuenta con fácil acceso a través de las principales carreteras y buenas comunicaciones por transporte público. La parada de metro más cercana es Barajas y se encuentra a menos de 20 minutos andando. La parada de autobús más cercana es Nuestra Senora de Loreto y se encuentra a menos de 5 minutos andando. La parada de taxi más cercana se encuentra a menos de 20 minutos andando.
En su entorno existen viviendas plurifamiliares de similares características. La zona cuenta con todo tipo de servicios básicos, existen 4 farmacias a menos de 300 metros, existen 2 colegios a menos de 300 metros. Además, a menos de 500 metros también puedes encontrar 2 supermercados, 4 bancos, una oficina de correos.
La zona cuenta con una amplia oferta de entretenimiento con un gimnasio, 11 parques, bares, restaurantes y comercios a pocos minutos de la vivienda.
En cuanto al transporte privado, la zona dispone de parkings privados, un parking público y aparcamiento en la calle. La vivienda tiene un fácil acceso por carretera y está bien comunicado a través de la M-12, M-111 y la Avenida de Logrono.
Requisitos:
- 1 mes de fianza.
- 1 mes de depósito.
- Seguro del hogar a la firma del contrato.
- Antigüedad laboral ininterrumpida superior a un año.
- No aparecer en ningún fichero de morosidad.
- Disponer de una ratio de solvencia* de entre un 30% y 35% dependiendo de la zona.
*Solo se tendrán en cuenta ingresos demostrables para acreditar el ratio.
La vivienda se comercializa mediante colaboradores que no cobran comisión de agencia, ofreciéndote un proceso directo, claro y sin costes añadidos.
Tipus d'immoble
Disponibilitat
Tipus de lloguer
Aigua calenta
Calefacció
Estat
Antiguitat
Planta
Ascensor
Moblat
Energia
Emissions
Garantim el cobrament de la renda de lloguer
Tria la Fibra que millor s'adapti a tu.
Explica'ns què hi has vist per poder corregir-ho.