Assegurança d'impagament
Garantim el cobrament de la renda de lloguer
Motril
En La Puchilla, frente a Alcampo, tenemos esta preciosa casa de propietario hecha con todo lujo de detalles y calidades premium.
Destaca por su terraza y piscina con vistas al campo, las montañas e incluso el mar. Situada en la zona oeste de Motril, destaca por la tranquilidad de la zona y la privacidad que le confiere su fachada trasera hacia el campo con una altura que le permite dominar el horizonte.
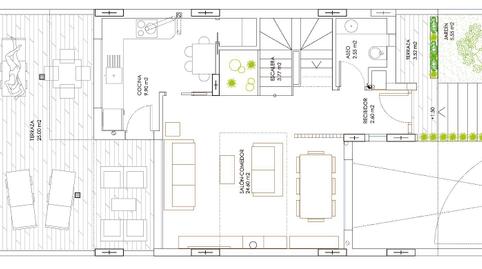
Cuenta con calidades recientes ya que se terminó en el año 2.018. Tiene aire acondicionado en salón y dormitorios, cochera para hasta dos vehículos, habitación multiusos en semisótano y despacho en la torreta, además de una habitación/invernadero en la cubierta.
Ventanas oscilobatientes, hueco en previsión de un ascensor/montacargas o suelos porcelánicos y de tarima flotante, además de agua caliente por placas solares.
Sólo se dejan parte de los muebles, pudiendo quedarse sin muebles.
En caso de interesarle la vivienda totalmente amueblada, el propietario pondría muebles funcionales en el lugar de los que se lleva.
NO SE ADMITEN MASCOTAS.
Es necesario obtener el visto bueno del Seguro de Impago de Alquileres antes de cualquier visita, debiendo aportar documentación acreditativa de tener ingresos de más de 4.000 euros netos mensuales. [IW]
Tipus d'immoble
Disponibilitat
Tipus de lloguer
Orientació
Aigua calenta
Antiguitat
Garatge
Ascensor
Moblat
Energia
Emissions
Garantim el cobrament de la renda de lloguer
Tria la Fibra que millor s'adapti a tu.
Contracta llum i gas online, sense permanència.
Explica'ns què hi has vist per poder corregir-ho.