Assegurança d'impagament
Garantim el cobrament de la renda de lloguer
Valencia Capital
¡ALTA DE SUMINISTROS GRATIS!
Excelente vivienda de tres dormitorios y un baño. Se encuentra en la planta 7 de un edificio residencial. Dispone de ascensor. Situado en Albors en el municipio de Valencia.
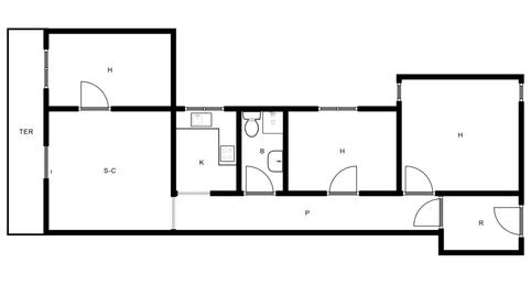
La vivienda se distribuye en tres dormitorios, armarios empotrados, salón-comedor con acceso a terraza, cocina independiente y un baño. Cuenta con cocina amueblada y equipada con muebles altos y bajos, vitrocerámica, horno y campana extractora. Dispone de suelos de gres en cocina y baño y tarima en el resto de estancias.
Se encuentra ubicado en Camins al Grau, Valencia. Cuenta con fácil acceso a través de las principales carreteras y buenas comunicaciones por transporte público. La parada de metro más cercana es Amistat y se encuentra a menos de 10 minutos andando. La parada de autobús más cercana es Cardenal Benlloch - La Pobla de Farnals y se encuentra a menos de 5 minutos andando. La parada de taxi más cercana se encuentra a menos de 10 minutos andando.
En su entorno existen viviendas plurifamiliares de similares características. La zona cuenta con todo tipo de servicios básicos, el centro de salud más cercano se encuentra a 200 metros, el hospital más cercano se encuentra a 250 metros, la farmacia más cercana se encuentra a 300 metros, existen 2 colegios a menos de 300 metros. Además, menos de 500 metros también puedes encontrar 6 supermercados, bancos, lavanderías, una oficina de correos.
La zona cuenta con una amplia oferta de entretenimiento con un cine, gimnasios, parques, bares, restaurantes y comercios a pocos minutos de la vivienda. Además, la playa más cercana se encuentra a menos de 10 minutos en coche.
En cuanto al transporte privado, la zona dispone de parkings privados, parkings públicos y aparcamiento en la calle. La vivienda tiene un fácil acceso por carretera y está bien comunicado a través de la Acceso norte a Valencia, Carrer del Doctor Manuel Candela y la Carrer del Doctor Manuel Candela.
Requisitos:
- 1 mes de fianza.
- 1 mes de depósito.
- Seguro del hogar a la firma del contrato.
- Antigüedad laboral ininterrumpida superior a un año.
- No aparecer en ningún fichero de morosidad.
- Disponer de una ratio de solvencia* de entre un 30% y 35% dependiendo de la zona.
*Solo se tendrán en cuenta ingresos demostrables para acreditar el ratio.
La vivienda se comercializa mediante colaboradores que no cobran comisión de agencia, ofreciéndote un proceso directo, claro y sin costes añadidos.
Tipus d'immoble
Disponibilitat
Tipus de lloguer
Aigua calenta
Estat
Antiguitat
Planta
Ascensor
Moblat
Energia
Emissions
Garantim el cobrament de la renda de lloguer
Tria la Fibra que millor s'adapti a tu.
Contracta llum i gas online, sense permanència.
Explica'ns què hi has vist per poder corregir-ho.