Alovera Homes II, tu nuevo hogar en Alovera. Obras iniciadas.
Promoción beneficiaria de los seguros Family Homes Protection y Neinor Coverliving. ¡Para que disfrutes de tu hogar sin preocupaciones!
Aseguramos el pago del capital pendiente de la vivienda, tanto de las cuotas de entrada, desde la firma del contrato de compraventa hasta la entrega de llaves, así como de la cuota hipotecaria, frente a diferentes situaciones (o contingencias)*.
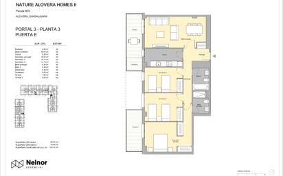
En Alovera Homes II te esperan 118 viviendas de 3 dormitorios con terraza, garaje y trastero incluidos en el precio. Todo en una urbanización cerrada con zonas comunes diseñadas para disfrutar: piscina de adultos e infantil, áreas verdes, juegos infantiles y mucho más.
Cocina amueblada
Armarios empotrados
Diseños modernos, amplios y llenos de luz
¡Todas las orientaciones para elegir la tuya!
Viviendas con garaje y trastero incluido en el precio
¿Buscas espacio exterior?
? Las plantas bajas tienen patio privado
? Los áticos cuentan con impresionantes terrazas-solárium
Y lo mejor: En Alovera Homes II, estarás en un entorno natural y tranquilo, pero a solo 10 min de Guadalajara y 40 min de Madrid. Más de 200.000 m² de zonas verdes, 10 km de carril bici y un circuito de running para un estilo de vida activo y saludable.
Entre la Avenida de España y la Calle Pitágoras, en un barrio en plena expansión, rodeado de grandes avenidas, comercios, colegios, centros deportivos y todo lo que necesitas a un paso.
Alovera Homes II, se distribuye en 5 portales, plantas bajas, 3 alturas más ático. Viviendas pensadas al detalle para ofrecer el máximo confort.
También hay locales comerciales disponibles.
¿A qué esperas? Escríbenos y descubre tu nuevo hogar.
Esto es living, una nueva forma de vivir en Alovera.