Connect your home
Choose the Fiber that best suits you.





Barberà del Vallès
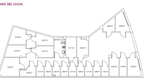
Vendemos local con 22 trasteros , ingresos de más de 2.000€ mes.
Negocio que está actualmente en funcionamiento.
Situado en pleno centro Barberà del Vallés, a 1 minuto del Ayuntamiento.
Vado permanente, puerta automática silenciosa para acceso coches (carga y descarga).
6 cámaras de seguridad alta definición.
100% luces Led con temporizador y apagado automático.
Todas las instalaciones nuevas de septiembre 2018.
Baño privado.
Una oportunidad para cualquier persona interesada en una inversión rentable.
Cada uno de los trasteros dispone de puerta metálica con cerradura con llave, y luz con apagado automático en su interior.
Página web (versión escritorio y versión móvil) activas y en pleno
funcionamiento.
Bajo mantenimiento.
Property type
Interest type
Estimated monthly payment
790 € *
* Provisional, subject to study and offer from CaixaBank
Are you already looking for finance?
We help you find the option that best suits you.
Service offered by
Fotocasa does not act as a financial intermediary. The information provided is for guidance only, based on publicly available market information. The credit institution will contact the potential borrower to negotiate, facilitate, and agree upon the applicable financial conditions.
Your monthly payment
790 € *
For 30 years (360 payments)
* Provisional, subject to study and offer from CaixaBank
Property price:
220.000 €
Taxes and Fees:
23.996 €
Total property cost:
243.996 €
Savings contributed:
44.000 €
Mortgage amount:
199.996 €
Total Interest:
84.485 €
Total cost with mortgage
328.481 €
Principal + interest + taxes and fees
Are you already looking for finance?
We help you find the option that best suits you.
Service offered by
Fotocasa does not act as a financial intermediary. The information provided is for guidance only, based on publicly available market information. The credit institution will contact the potential borrower to negotiate, facilitate, and agree upon the applicable financial conditions.
Choose the Fiber that best suits you.
Get electricity and gas online, no contract required
Please let us know about it so we can correct it.