Connect your home
Choose the Fiber that best suits you.
Lucena
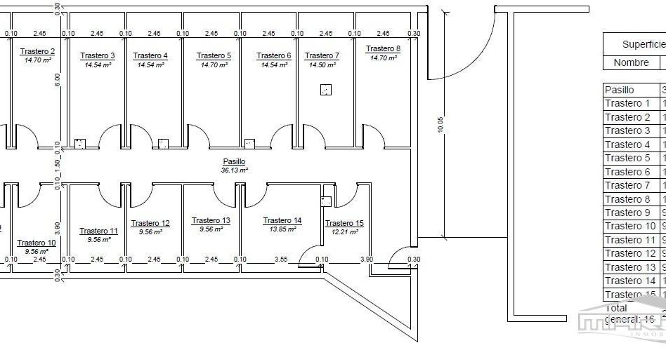
Sótano de 240 metros diáfanos, ideal para proyecto de construcción de 15 buenos trasteros.
El precio publicado no incluye el gasto de notaría, registro, ni el impuesto correspondiente. Tampoco incluye el gasto de gestión inmobiliaria*, salvo que en el anuncio se especifique \"sin comisión inmobiliaria\". En cumplimiento del decreto 218/2005 reglamento de información al consumidor, se encuentra a disposición de quién lo solicite ficha informativa de este inmueble.
Los contenidos del anuncio tienen únicamente finalidad informativa y en ningún caso deben considerarse como oferta de venta o financiación. Asimismo, la solicitud de petición de información de cualquiera de los productos o servicios incluidos en el anuncio no supone aceptación de ninguna oferta. La información de los contenidos se actualiza con carácter periódico.
*Gestión inmobiliaria: en caso de compraventa se cobrará a la parte compradora el 2% sobre el precio de venta final, con un mínimo de 2.000 € si el importe resultante de aplicar dicho porcentaje fuese menor a dicha cantidad (IVA no incluido). En las plazas de parking se cobra una tarifa fija de 500 € (IVA no incluido).
MARTIN INMOBILIARIA
Encuentra más en http://www.martininmobiliaria.es
Typology
Floor
Interest type
Estimated monthly payment
139 € *
* Provisional, subject to study and offer from CaixaBank
Are you already looking for finance?
We help you find the option that best suits you.
Service offered by
Fotocasa does not act as a financial intermediary. The information provided is for guidance only, based on publicly available market information. The credit institution will contact the potential borrower to negotiate, facilitate, and agree upon the applicable financial conditions.
Your monthly payment
139 € *
For 30 years (360 payments)
* Provisional, subject to study and offer from CaixaBank
Property price:
39.000 €
Taxes and Fees:
3.981 €
Total property cost:
42.981 €
Savings contributed:
7.800 €
Mortgage amount:
35.181 €
Total Interest:
14.862 €
Total cost with mortgage
57.843 €
Principal + interest + taxes and fees
Are you already looking for finance?
We help you find the option that best suits you.
Service offered by
Fotocasa does not act as a financial intermediary. The information provided is for guidance only, based on publicly available market information. The credit institution will contact the potential borrower to negotiate, facilitate, and agree upon the applicable financial conditions.
Choose the Fiber that best suits you.
Save 30% on a 5-star service.
Please let us know about it so we can correct it.