Connect your home
Choose the Fiber that best suits you.
Madrid Capital
Agencia inmobiliaria de Madrid zona Usera, Almendrales Tecnocasa Estudio Almendrales Sl, Vende
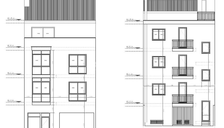
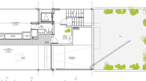
Edificio Residencial cerca a la c/Marcelo Usera - Oportunidad Única en el Mercado
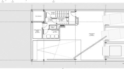
Descubre este moderno edificio residencial, ideal para inversores que buscan una opción rentable y versátil. Con un total de 510 m² construidos, la propiedad cuenta con 5 viviendas, 1 local comercial y un garaje con 3 plazas de parking, todo en un estado impecable. La construcción, realizada en 2010, destaca por su diseño funcional y acabados de alta calidad.
En el interior, se encuentran dos estudios exteriores perfectos para quienes buscan un espacio acogedor. Además, hay dos apartamentos de un dormitorio con balcón, ideales para disfrutar del aire libre. Para aquellos que prefieren un estilo de vida más amplio, el dúplex con terraza y bajo cubierta ofrece una experiencia única de confort y espacio.
Las cocinas están completamente equipadas con electrodomésticos modernos, incluyendo placa de inducción, horno, microondas, frigorífico y lavavajillas. La climatización individual por bomba de calor y la ventilación mecánica garantizan un ambiente agradable durante todo el año. Además, el edificio cuenta con telecomunicaciones completas y videoportero para mayor seguridad.
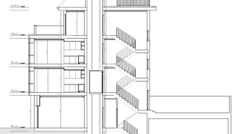
Con una certificación energética B, este edificio no solo es atractivo por su diseño, sino también por su eficiencia. El ascensor facilita el acceso a las tres plantas, haciendo que cada vivienda sea accesible para todos. Sin inquilinos actualmente, esta es una oportunidad perfecta para adquirir un inmueble en buen estado y listo para ser rentado.
Usera es un barrio consolidado con una ubicación inmejorable dentro Madrid con el Parque Madrid Rio, Centro Comercial Plaza Rio 2 Metro (Línea 6 y 3) y conexiones con las principales carreteras como M-30, M-40, A-42 y A4.
Con más de 25 años en el Barrio ofreciendo el mejor servicio y profesionalidad siendo especialistas en:
- COMPRAVENTA Y ALQUILERES
- VIVIENDA DE PROTECCIÓN OFICIAL (VPO)
- HERENCIAS Y VENTA DE LA NUDA PROPIEDAD
- VALORACION GRATUITA DE SU INMUEBLE
- ASESORAMIENTO PERSONALIZADO PARA VENDEDORES Y COMPRADORES
Si quieres vender, comprar o alquilar en el barrio confié en Tecnocasa calle Marcelo Usera 42, Local.
AVISO LEGAL: Recordamos a nuestros Señores clientes que la información facilitada no constituye una auténtica oferta vinculante ni contractual. Este anuncio publicitario es provisional, y las fotografías y datos en él incluidos están sujetos a posibles modificaciones, consecuencia de exigencias comerciales, jurídicas, técnicas o por mandato expreso de la propiedad. La información aquí contenida procura reflejar una orientación sobre los inmuebles a la fecha de su publicación. La totalidad del contenido que aparece tiene carácter meramente informativo y aproximado, no teniendo, en modo alguno, carácter contractual. Tanto los datos, como las imágenes y planos pueden estar sujetos a cambios, por lo que le invitamos a que, si precisa una información más exacta y detallada, contacte con nosotros y le atenderemos a la mayor brevedad posible.
Typology
Antiquity
Elevator
Energy consumption
Emissions
Interest type
Estimated monthly payment
5.962 €
Are you already looking for finance?
We help you find the option that best suits you.
Fotocasa does not act as a financial intermediary. The information provided is for guidance only, based on publicly available market information. The credit institution will contact the potential borrower to negotiate, facilitate, and agree upon the applicable financial conditions.
Your monthly payment
5.962 € *
For 30 years (360 payments)
* Provisional, subject to study and offer from CaixaBank
Property price:
1.750.000 €
Taxes and Fees:
108.785 €
Total property cost:
1.858.785 €
Savings contributed:
350.000 €
Mortgage amount:
1.508.785 €
Total Interest:
637.364 €
Total cost with mortgage
2.496.149 €
Principal + interest + taxes and fees
Are you already looking for finance?
We help you find the option that best suits you.
Fotocasa does not act as a financial intermediary. The information provided is for guidance only, based on publicly available market information. The credit institution will contact the potential borrower to negotiate, facilitate, and agree upon the applicable financial conditions.
Choose the Fiber that best suits you.
Save 30% on a 5-star service.
Please let us know about it so we can correct it.