Connect your home
Choose the Fiber that best suits you.
Palma de Mallorca
El edificio es de estilo racionalista, obra del prestigioso arquitecto mallorquín Francisco Salas Llompart. En esta construcción, siguiendo las premisas del racionalismo, los tradicionales muros de carga se sustituyen por pilares.
Actualmente tiene 745 m2 construidos. 325 m2 en planta baja, 258 m2 en 1ª planta y 162 m2 en 2ª planta. La planta baja es un local comercial. En primera y segunda planta, una vivienda de 420 m2 con 6 habitaciones y 2 baños.
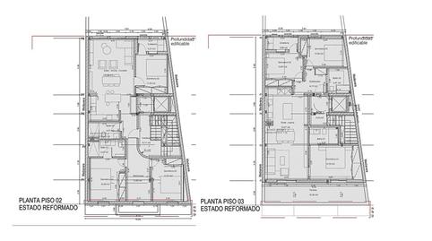
Se incluye un proyecto de reforma, ampliación y ascensor con licencia municipal de obra, que contempla la construcción de una planta adicional en la azotea.
Se han proyectado 3 viviendas, una por planta, con 3 dormitorios dobles, 2 baños, salón con cocina integrada y lavadero. El proyecto incluye también la instalación de un ascensor. En planta baja se ha proyectado un local comercial, pero se podría cambiar y destinar a zona de aparcamientos.
Tanto la fachada del edificio como la escalera están catalogadas, lo que se contempla en el proyecto de reforma al tratar estas partes, se conservan y restauran.
Contáctenos para ampliar información y concertar una visita.
Property type
Orientation
Condition
Age
Energy
Emissions
Interest type
Estimated monthly payment
6.811 € *
* Provisional, subject to study and offer from CaixaBank
Are you already looking for finance?
We help you find the option that best suits you.
Service offered by
Fotocasa does not act as a financial intermediary. The information provided is for guidance only, based on publicly available market information. The credit institution will contact the potential borrower to negotiate, facilitate, and agree upon the applicable financial conditions.
Your monthly payment
6.811 € *
For 30 years (360 payments)
* Provisional, subject to study and offer from CaixaBank
Property price:
2.000.000 €
Taxes and Fees:
123.785 €
Total property cost:
2.123.785 €
Savings contributed:
400.000 €
Mortgage amount:
1.723.785 €
Total Interest:
728.188 €
Total cost with mortgage
2.851.973 €
Principal + interest + taxes and fees
Are you already looking for finance?
We help you find the option that best suits you.
Service offered by
Fotocasa does not act as a financial intermediary. The information provided is for guidance only, based on publicly available market information. The credit institution will contact the potential borrower to negotiate, facilitate, and agree upon the applicable financial conditions.
Choose the Fiber that best suits you.
Get electricity and gas online, no contract required
Please let us know about it so we can correct it.