Building in Centre
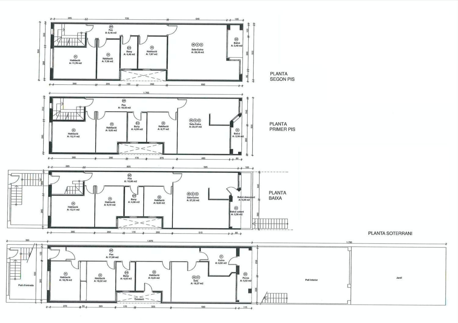
Planta Sótano: Metros útiles 77,29 m2. Su entrada a traves de un patio. Consta de tres dormitorios dos dobles y uno individual, cocina independiente, cuarto de baño y gran salón de 19 m2 con salida a un porche y acceso directo a patio interior y amplio jardín de 72 m2 Planta Baja: Metros útiles 71,09 m2. Gran salón de 28 m2 con salida terraza de 8 m2. Tres dormitorios dos dobles, cocina semi-independiente con salida a balcón y cuarto de baño con plato de ducha. Aire acondicionado. Calefacción de gas natural. Toldo eléctrico. Ventanas de aluminio. Planta Primera: Metros útiles 71,09 m2. Salón-cocina de 26 m2 con salida a balcón de 3 m2, tres dormitorios y un baño. Planta Segunda: Metros útiles 68,50 m2. Salón-cocina de 29 m2 con salida a balcón de 4 m2, tres dormitorios y un baño. Hace unos años años fue reformado y mejorado el interior de las cuatro viviendas. En cumplimiento de la ley 3/2917 del 13 de febrero de 2018 del CODIGO CIVIL DE CATALUNYA, por el que se aprueba el Reglamento de Información al Consumidor en la compraventa y arrendamiento de viviendas en CATALUÑA, se informa al cliente que los gastos notariales, registrales e impuestos que le sean de aplicación ( ITP ó IVA + AJD ) y otros gastos inherentes a la compraventa no están incluidos en el precio. [IW]
- 409 m²
