Building in La Merced
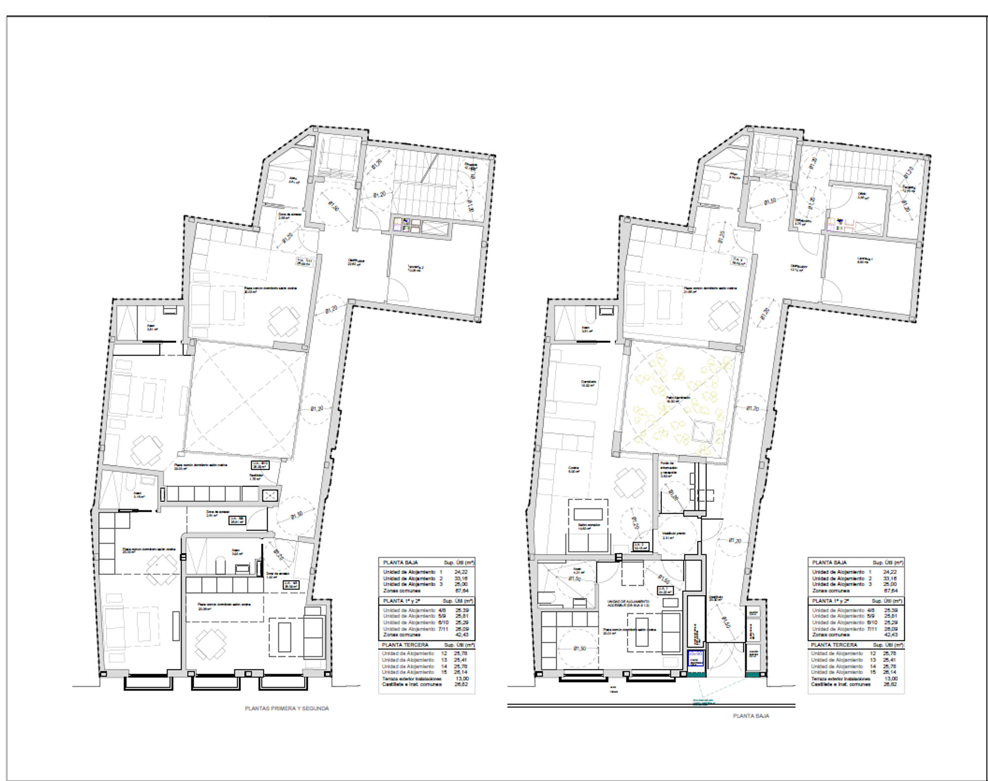
Inversión Única en el Corazón de Málaga! Ideal para Hotel Cápsula o Hostal Ubicado en el emblemático barrio de La Merced, a pasos de la casa natal de Picasso y rodeado por la vibrante escena cultural malagueña, este edificio de 330 m² es la oportunidad perfecta para transformar en un hotel cápsula, hostal boutique o apartamentos turísticos. ¿Por qué este inmueble es una apuesta segura? ✅ Ubicación privilegiada: En el centro neurálgico de Málaga, rodeado de teatros, restaurantes, museos y todos los servicios esenciales. ✅ Diseño versátil: Distribución ideal para alojamientos turísticos, con espacios adaptables a múltiples configuraciones. ✅ Listo para personalizar: Acabados de calidad y hueco preparado para la instalación de un ascensor. ✅ Gran rentabilidad: Málaga es una de las ciudades más demandadas para el turismo, lo que garantiza una ocupación constante. Distribución inteligente para hostal o hotelcapsula:
- 5 rooms·
- 3 bath·
- 330 m²
