Connect your home
Choose the Fiber that best suits you.





La Línea de la Concepción
Nave industrial en venta en San Roque (Cádiz) – Ideal para logística o sector náutico
📍 Ubicación: Polígono Industrial de San Roque, junto a la A-7 y cerca del Puerto de Algeciras
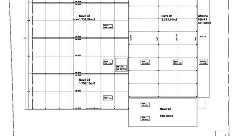
📐 Superficie construida: 6.624 m²
🧱 Parcela: 10.920 m²
🏗️ Altura libre: variable, hasta 9 m
🏗️ Estructura: Metálica con cerramientos de bloque y cubierta de chapa
🔧 Equipamiento:
• Puente grúa de 5 toneladas
• Puertas seccionales de gran formato
• Oficinas y baños en planta baja
• Posibilidad de ampliación o reconfiguración
🚤 Uso actual: Hangar para embarcaciones de recreo
🔋 Potencial: Ideal para actividades logísticas, industriales o servicios náuticos
✅ Excelente accesibilidad para tráileres
✅ Gran superficie de maniobra
✅ Muy buena conexión con el Puerto y las principales vías de transporte
Precio y condiciones bajo consulta. Oportunidad única en una de las zonas industriales con mayor proyección del sur de España. Precisa actualización.
Property type
Condition
Age
Lift
Interest type
Estimated monthly payment
7.661 € *
* Provisional, subject to study and offer from CaixaBank
Are you already looking for finance?
We help you find the option that best suits you.
Service offered by
Fotocasa does not act as a financial intermediary. The information provided is for guidance only, based on publicly available market information. The credit institution will contact the potential borrower to negotiate, facilitate, and agree upon the applicable financial conditions.
Your monthly payment
7.661 € *
For 30 years (360 payments)
* Provisional, subject to study and offer from CaixaBank
Property price:
2.250.000 €
Taxes and Fees:
138.785 €
Total property cost:
2.388.785 €
Savings contributed:
450.000 €
Mortgage amount:
1.938.785 €
Total Interest:
819.011 €
Total cost with mortgage
3.207.796 €
Principal + interest + taxes and fees
Are you already looking for finance?
We help you find the option that best suits you.
Service offered by
Fotocasa does not act as a financial intermediary. The information provided is for guidance only, based on publicly available market information. The credit institution will contact the potential borrower to negotiate, facilitate, and agree upon the applicable financial conditions.
Choose the Fiber that best suits you.
Save 30% on a 5-star service.
Please let us know about it so we can correct it.